="://lemeizhai.com" target="_self">田园风格的农村自建房屋二层,清新自然的建筑系列,城市别墅真的很弱
生活好了之后,每个人都开始改善自己的生活环境。农村也非常不同。土坯房不见了,现在所有的建筑都是二楼的小洋房。随着每个人对个性的追求,各种风格的别墅在中国农村蓬勃发展并相互竞争。今天,小安将为您带来一座乡村两层田园风格的别墅。
这座别墅采用砖混结构。主要成本:230,000-260,000。占地面积:181平方米。这是一栋17.4米* 10.2米的两层别墅。这座美丽而简单的别墅有两层,二层有车库和露台,这是这座别墅的亮点。静静地靠在护栏上,看着成千上万的风景,感受着微风;或者悠闲地坐在椅子上,读一本不相关的书,清空你平常的烦恼;或者办一个热闹的露天晚会,这也不是不可能的。整体颜色和材质都是相对较浅的颜色,这种颜色创造的外观在农村地区低调但奢华。

门厅与客厅融为一体,面积很大。独立的厨房避免了油烟的逸出,厨房还设计了一个土炉车间。小安认为瓦炉坊应该是一段珍贵的童年记忆。左下角还有一个车库,让你的车远离风和太阳,车库还有一个后门,直接通向房间,非常方便。右边两间卧室和中间一个卫生间的设计非常私密。


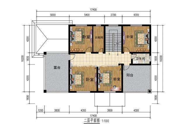
二楼的四间卧室很好地满足了生活需求,楼梯旁专门设计了一间衣帽间,非常实用。左右两侧各有一个露台和一个阳台,能很好地满足日常晾晒的需要,通风透光能力强。露台也可以创造一个空中花园或露天烧烤,这也是一个很好的选择。
转载请注明出自轩鼎别墅设计="://lemeizhai.com" target="_self">://www.lemeizhai.com