在="://lemeizhai.com" target="_self">农村建房子是最重要的事情。不要错过二楼
现在农村发展越来越好,越来越多的朋友选择在农村建房子。但是在农村建房子,实用性是最重要的。如果家庭人口不多,一般足以建两层楼。一家人住得宽敞舒适,两层小户型别墅相对实惠实用。
这座别墅外观精致简单,正面明亮漂亮,有黄色瓷砖和红色大屋顶。一楼的玄关不仅可以起到家庭的缓冲作用,还可以遮挡雨幕,非常人性化。四面多窗设计,照明和通风极佳。
基本信息



别墅号:MS1702152
占地面积:11.6X12米
占地面积:144.92平方米
建筑面积:243.33平方米
结构类型:砖混结构
主要成本:200,000-250,000
布置图


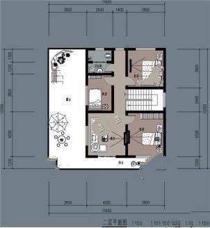
所有卧室都配有采光通风窗,生活舒适有保证。上下有四间卧室,正好适合农村的普通家庭。
还有一个露台,供日常晾晒。你也可以在闲暇时种植你喜欢的植物和鲜花。春天和夏天,你可以在露台花园泡一壶茶,捧一本书。生活是美好的。
转载请注明出自轩鼎别墅设计="://lemeizhai.com" target="_self">://www.lemeizhai.com