="://lemeizhai.com" target="_self">经典的3层乡村别墅,视听室,车间,活动室,空客厅,所有建筑图纸!
以最自然的方式把人和自然结合起来,一切都显得那么纯洁。阵阵微风吹进你的耳朵,故土的气息萦绕你的鼻子。你门前郁郁葱葱的绿草带你进入一个安静的世界,一个更好的生活开始了。

该公寓外观简洁大方,色彩明亮,功能分区合理,房间尺度设计适宜,采光通风良好,大落地玻璃充满时代气息。




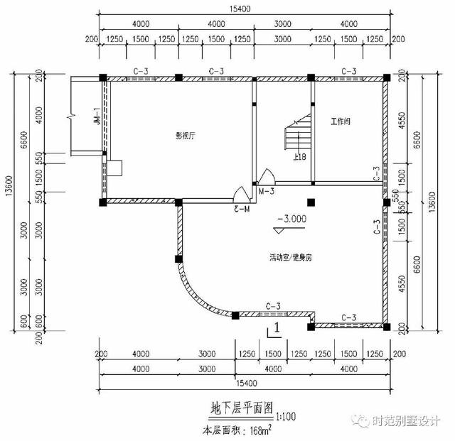
一楼:有视听室、健身房、活动室和工作室,可作为元旦期间家人和朋友聚会的场所,提升生活品味。
底层:大客厅、厨房、餐厅、两间卧室、一间带卫生间的卧室可以作为老年人的房间(方便腿脚不便的老年人)。从地板到天花板的大玻璃使整个公寓的照明格外好。
二楼:2间卧室,空客厅,家庭室和露台朝南。
三楼是主要的居住区:有3间卧室,每间都配有浴室,一个朝南的大露台,以及主卧室的更衣室和浴室。
装饰盒:露台
浴室:


卧室:

转载请注明出自轩鼎别墅设计="://lemeizhai.com" target="_self">://www.lemeizhai.com