古典与现代的完美结合,钱江2层="://lemeizhai.com" target="_self">新中式别墅正在燃烧
有这样的朋友吗?我喜欢中式别墅和现代别墅。似乎不可能把两者结合起来,而且感觉不伦不类。答案是肯定有这样的人,否则,新的中国别墅怎么可能诞生?
今天我要介绍的是钱江的王老师为我们新设计的两层别墅的图纸。在别墅建成之前,它已经吸引了村里的“大咖啡”来提问。王老师现在在村子里很生气。让我们来看看这座新的两层中国别墅的图纸。



如果有需求,就会有产品,别墅也在按照市场需求发展。看完效果图后,你能感受到新中国别墅的美丽吗?整个别墅是中式的,点缀着现代风格的细节。使别墅不太单调,但也有古典的味道。古典与现代的完美结合是许多90后业主梦寐以求的别墅。
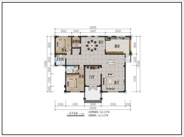
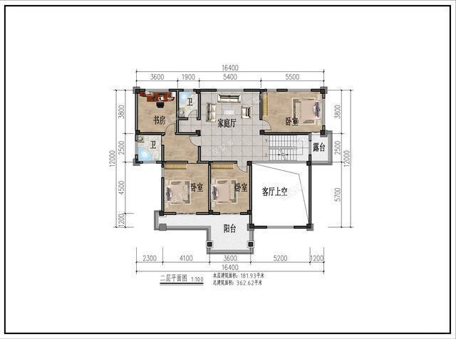
2层新中国别墅数据
图纸号。来自评论区的请求
建筑面积:362.62
占地面积:180.69
别墅规格:12米16.4米
主要预算:570,000
既然是中式别墅,那就必须具备中式别墅的属性。占地面积180,在普通别墅中要求稍高。
2层新中国别墅计划


这座两层的中式别墅的空间布局也符合中式别墅的布局。缓冲房间以增强私密性。相对而言,这座别墅的娱乐空间较少。但是住在里面也很舒服。需要重申的是,平面布置图是根据钱江王老师的需要而布置的。每个人的需求都是不同的,所以计划自然是不同的,可以根据个人的需求而改变。
转载请注明出自轩鼎别墅设计="://lemeizhai.com" target="_self">://www.lemeizhai.com