别墅设计:一栋="://lemeizhai.com" target="_self">两层半现代的别墅,备受好评,简约时尚,外观迷人


许多朋友向我抱怨。现代风格的别墅设计的效果图非常好,但是当它们实际建造时,它们就完全不同了。建筑大师根本没有那种技能,也不能恢复图纸。
边肖想过,这是真的。现代风格注重天马行空,依靠简单线条的简单组合创造出极简主义的魅力。然而,正是因为这些简单的线条组合,建造起来非常困难。
今天,边肖特意挑选了一套构造非常简单的案例与大家分享。我希望每个人都喜欢。
建筑信息
海湾:18米
深度:10m
建筑面积:380平方米
建筑结构:框架结构
建筑风格:现代风格



该建筑的整体信息是现代风格,立面由纯白色的真石漆制成,看起来非常干净和简单。屋檐的角线是用黑漆做的,很有能力,也很漂亮。
这座建筑形状丰富,看起来像许多线条,但如果你仔细看,你会发现没有难以建造的地方,没有弧线,没有尖顶,都是简单的直线。这种建筑很容易建造。
室外阳台面积大,所以你可以在楼上享受室外阳光和空气。
建筑的后立面有许多窗户,基本上使南北呼应,感觉透明。
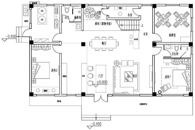
让我们看看平面布局效果:



一楼布局:一楼有两间卧室,一间棋牌室,一间厨房餐厅和一间土制炉灶厨房。楼梯下的空间也被用作备用空间。
二楼布局:二楼有五间卧室、一间客厅和一个室外露台。这么多卧室在农村很受欢迎。
三层布局:三楼作为备用空间,只有一个顶篷,里面的空间可以用来存放谷物等。
转载请注明出自轩鼎别墅设计="://lemeizhai.com" target="_self">://www.lemeizhai.com