别墅设计:一栋="://lemeizhai.com" target="_self">两层楼的欧式别墅,橘红色的屋顶,复古而精致,远远坠入爱河




该建筑属于欧式别墅,设计为两层。对于一个家庭来说,住在这里不成问题。建筑的正面由一楼的砖和二楼的真石和白漆组成,带有橙色的屋顶,这使得建筑看起来清晰而光滑。橙色屋顶复古而精致。一旦完成了产品的设计,主人就非常满意了。



建筑的屋顶设计成斜坡的顶部,碎石是橙色的,显示出欧洲风格。带坡顶的屋顶不仅使别墅看起来更高,而且便于雨季排水,使建筑不会有屋顶积水的问题。
大楼二楼的主卧室有一个小阳台,不仅使房间透明明亮,而且通风效果非常好。小阳台上还可以种植一些花草,使空气更加清新。阳台的栏杆也便于冬天晒被子,这在农村是必不可少的。阳台被设计成从地板到天花板的玻璃门,这使得别墅更加美丽。隔壁的房间也设计有玻璃窗户,所以房间里的照明很好。
别墅有多个窗户,设计用于室内通风和照明。别墅的庭院被墙包围着。该建筑有一个独立的庭院,而且墙壁不是很高,这也方便邻居聊天。
该建筑的门也设计有一个斜坡顶,斜坡顶两侧的墙壁雕刻有图案,凸显了欧洲建筑的精致。坡顶的橙色与整个建筑相得益彰。
建筑的庭院里长满了绿色的植物,这不仅使庭院里的空气更清新,而且有更好的意义。另外,院子里有两个车库,车都停在自己的院子里,既安全又干净。
在院子里种些花草树木不仅美化了建筑,还能打发空闲时间。女主人非常喜欢养花和植物,所以这是主人的特殊要求。




从建筑的自上而下的效果图中,我们可以看到庭院相对较大,所以它占据了相对较大的面积。如果宅基地很小,我们可以考虑将庭院设计得更小。
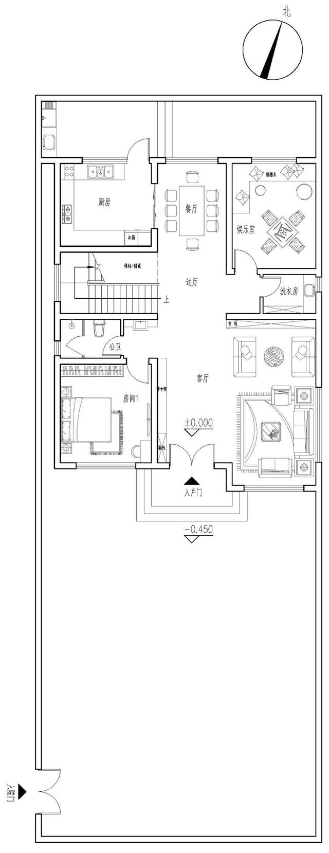
最后,看看平面效果图:



一楼的入口是大客厅,可以让室内看起来更宽敞,招待客人。左边是卧室,一楼是卧室,可以当老人躺下后走进去。更有特色的是娱乐室和洗衣房,这对朋友和亲戚来说比假期聚会更好。洗衣房是独立的,内部更干净、更新鲜。将储藏室设在楼梯下,不浪费空间,使房间更加整洁。
二楼有三间卧室,其中两间有带阳台的卧室,完全满足了全家人的需求,住起来非常舒适。自习室的设计是业主要求的,希望有一个独立的办公空间,孩子们也有一个独立的学习空间。两个目的共用一个房间是非常好的。
转载请注明出自轩鼎别墅设计="://lemeizhai.com" target="_self">://www.lemeizhai.com