="://lemeizhai.com" target="_self">农村别墅设计图:外观简单,内部透明,充满美国风格!


“一人两室三餐四季。等我有钱了,我会和我爱的人一起环游世界!”你一定听到或许下了这样一个美好的愿望。当然,边肖相信有一天我们的梦想会实现。在经济压力下,我们都希望用最少的投资获得更好的体验。今天,边肖想向大家介绍的是一座外观简单、内部透明、成本可控的美式双层别墅。
首先,让我们看看别墅的整体风格:


这座建筑的主色调是灰色。屋顶的凹凸设计和显眼的烟囱使别墅的寄宿风格更加强烈。双层平房,外观简单,面积小,旨在方便家庭成员饭后在院子里看夜空,交流感情,让主人情不自禁地萌发一种来自大自然的农家乐趣。


这是别墅左立面的渲染;独特而突出的窗户设计呈现出独特的线条之美。一楼的墙壁与二楼的不同,一楼是大理石图案,二楼是简单的白色长方形瓷砖。这种设计也使这座建筑呈现出独特的特色。
这是别墅的正面图:我们可以发现建筑设计了两个出口,方便每个人进出。屋顶设计非常和谐美观。虽然二楼没有阳台,但大门窗的设计也能让别墅有足够的阳光。
这是别墅的侧景和后景:简单的露台被栏杆环绕,确保了建筑的安全性。这家人可以偶尔上来,边吹空气边聊天。
一楼平面图:棋牌室、开放式厨房、餐厅、浴室、正门和副门。
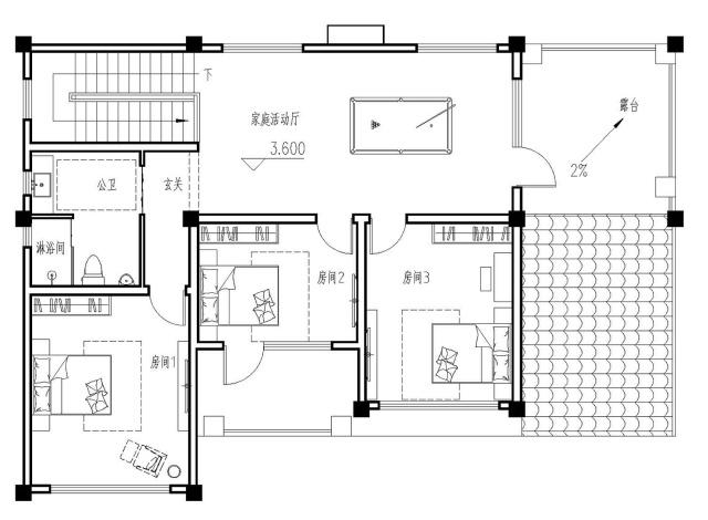
二楼平面图:三个房间,私密露台和特别家庭活动厅。
转载请注明出自轩鼎别墅设计="://lemeizhai.com" target="_self">://www.lemeizhai.com