两栋11米 ×9米的="://lemeizhai.com" target="_self">农村自建房屋,低调的两层和豪华的三层可供您选择
看到房地产市场的冬天已经到来,很多人把钱投在了农村土地上,尤其是宅基地和自建房屋,但是如果他们想建一栋有价值的房子,他们真的必须努力工作。然而,许多人错误地认为,如果有价值,就意味着家园必须大,如果它不大,就不能代表价值。事实上,这种理解是片面的,因为你还没有看到本期我们想推荐的两种公寓类型。这两个方案都是11米 9米的户型,虽然建筑面积只有1000平方米,但充分证明了小户型有很大价值的理论并非空穴来风。这两个方案有低调的两层结构和豪华的三层结构,总有一个你可以看到。
第1段:
一栋标准的三层欧式别墅摒弃了许多奢华的欧洲元素,以简单的公寓结构体现了简约风格之美,但其建筑设计仍很有特色,不仅有双层门楼和大落地窗,还有大露台和横梁支撑,具有浅色外墙装饰效果,给人一种赏心悦目的感觉,在农村环境中仍属于小豪华风格。




该建筑三层结构的具体分布如上图所示。一楼是主要的客厅,有一个房间,两个大厅,一个厨房和一个浴室,以及一个大的门厅。宽敞的房间感觉很大气,客厅和厨房有足够的空间。客厅20平方米,厨房8平方米,比一般设计更大气。储藏室在楼梯下面。空间利用充分,设计合理。二楼是主要休息区,有三个房间和一个大厅,其中两个是卧室,一个是棋牌室,两个卧室中的一个是豪华套房,使生活更加舒适。三楼是一个工作和休闲区,有一个独立的学习和娱乐休闲区,两个室外露台,一大一小,丰富了家庭生活。
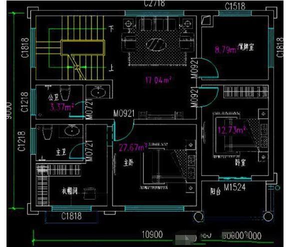
第2段:
低调的两层别墅,作为农村地区最常见的类型,随时都以二层结构为主力。然而,现在的两层结构有更强的设计感,就像这个方案一样,外观美丽大方,装饰美丽生动,建筑底座和轮廓使用蘑菇石。这里采用了欧洲建筑中的罗马圆柱、花瓶圆柱和弧形大厅结构,进一步增强了建筑风格。



大楼二层有五个房间和三个大厅,其中一层有两个房间、两个大厅、一个厨房和一个浴室,东侧有一个由客厅、餐厅和厨房组成的客厅,西侧有一个由两个卧室组成的休息区,中间有一个弧形楼梯,二层有三个房间、一个大厅和一个浴室,并预留了一个小储藏室和一个大型室外露台。
这两个设计方案的建筑面积只有100平方米。然而,作为新农村建筑中常见的公寓结构,无论是二楼还是三楼,内部设计都是实用的布局,五室三厅的结构也能满足大多数家庭的住房需求,这也是自建住宅的主要价值所在。

转载请注明出自轩鼎别墅设计="://lemeizhai.com" target="_self">://www.lemeizhai.com