="://lemeizhai.com" target="_self">农村别墅设计的楼梯就是这样设计的,室内的豪华程度加倍
20世纪80年代和90年代的自建房屋,虽然也是两层楼,但在美学和适用性方面,确实无法与目前的设计方案相比。不是当时的设计不好,而是当时的设计有一定的局限性,不能满足现在的生活需要。当时大多数楼梯都是室外设计的。虽然没有占用室内空间,但实际效果却很差。因此,我们现在看到的自建房屋的楼梯基本上都在。为了追求建筑的美,很多人在建筑的造型和装饰上下了很大功夫,并在奢华的装饰材料上花了很多钱。事实上,有一个非常简单而有效的方法,就是把楼梯设计成旋转结构,然后结合复式客厅的结构,豪华感一下子倍增。
本期我们推荐三种螺旋楼梯的设计方案。虽然只有两层,但它们既豪华又实用。
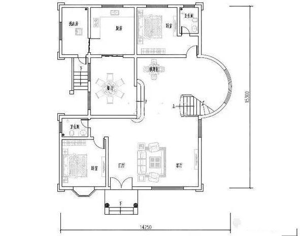
第一套:


里面和外面都有楼梯。内部螺旋楼梯直接通向二楼,外部楼梯与洗衣房相连,方便烘干。客厅设计成空的,靠近螺旋楼梯。根据楼梯的方向,建筑形状有明显的弧形设计。即使没有豪华的装修,这座建筑仍然非常豪华。该建筑的设计尺寸为14.25米宽,15.3米深。建筑面积184.4平方米,总建筑面积469.2平方米.
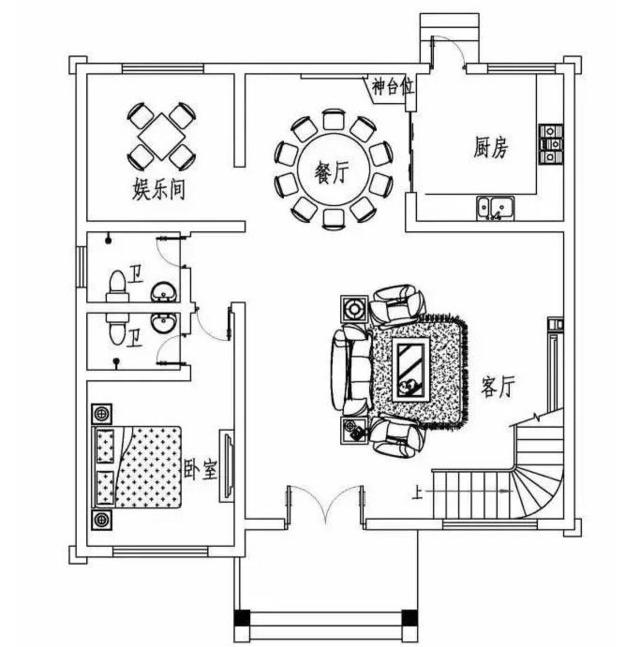
第二套:


看似奢华霸气,实际上,这座小巧优雅的两层别墅几乎没有什么外部装饰和低调的色彩选择,但这并不妨碍它的奢华。螺旋楼梯围绕客厅建造,一直通向二楼,从楼梯可以俯瞰客厅。建筑设计尺寸为宽10.8米,深10.7米。建筑面积116.4平方米,总建筑面积273.7平方米.
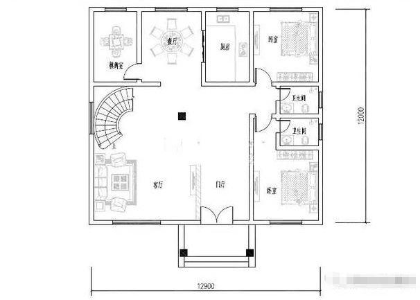
第三集:


带螺旋楼梯的三层别墅设计方案如下:宽12.9米,深12米,建筑面积160.9平方米,总建筑面积477平方米。复式客厅配有螺旋楼梯,进门时很豪华。公寓有8间卧室,棋牌室、健身房和其他基本功能房间设备齐全。
转载请注明出自轩鼎别墅设计="://lemeizhai.com" target="_self">://www.lemeizhai.com