="://lemeizhai.com" target="_self">经典的庭院设计:地基也可以用小地基建造,村民们非常羡慕



今天,边肖带给你一个庭院设计。不要担心你家里的小粉底,小粉底也可以盖起来
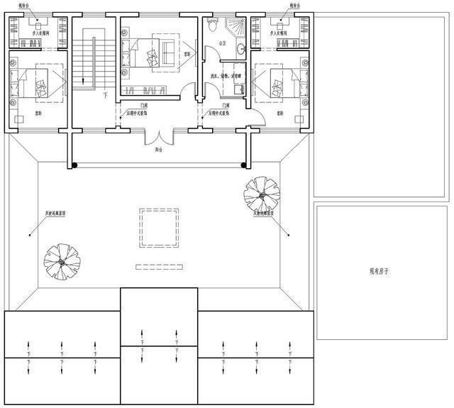
四合院占地面积相对较小,东南角的老房子是户主,需要保留。它有几代人的亲和力,并增加了一个经典的神秘
四合院的墙壁主要是青砖砌成的,具有历史的魅力。它们与真正的石漆搭配起来既美观又实用,完美地弥补了古代房屋的不足。



总的来说,房子也有一个非常突出的亮点。四合院的设计非常和谐,青砖、真石漆和蓝黑瓷砖体现了中式的宁静氛围。朱红色承重柱和中国蕾丝红色窗户进一步凸显了中国节日。
四合院分为南北两个建筑,两边的房子通过走廊连接成一个整体,既可以挡风遮雨,又给住户增添了一种仪式感。走廊里没有装饰,在这个有限的空间里最大化了视觉空间的感觉。
屏风墙设计在庭院的入口处,起到屏风的作用。庭院前的三级阶梯给人一种非常愉快的进屋感觉,而大门前的深邃空间增加了许多进屋的仪式感。
让我们来看看这座建筑的具体平面设计:


一楼的布局设计可以说是非常对称的。主厅位于中间,客厅位于东侧。设计了一个茶室。当客人来的时候,和他们一起喝茶是非常愉快的。由于老年人上下楼梯不方便,一楼还设计了一个老年房间。
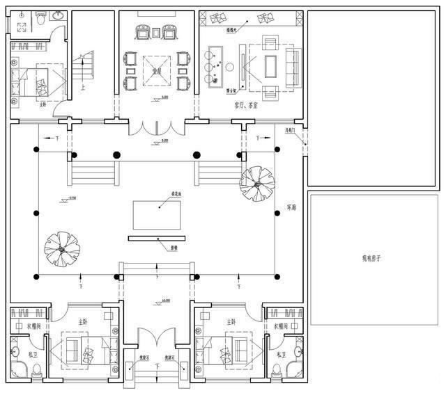
二楼有三间卧室,东西两侧的卧室都配有衣帽间。当客人来访时,有足够的房间过夜。阳台可以俯瞰整个庭院和远处的风景,非常美丽。
这个四合院的整体设计合理,满足了人们生活的基本需求,在建筑、古典主义和外观方面都非常漂亮
转载请注明出自轩鼎别墅设计="://lemeizhai.com" target="_self">://www.lemeizhai.com