推荐两张两层半露台的="://lemeizhai.com" target="_self">别墅图片。在南方建造这样的房子是可行的
我们都知道在北方,我们都喜欢封闭阳台。许多人不太明白。事实上,你不了解北方的寒冷。相反,在南方,露天阳台和露台最受欢迎。在热带气候地区,空地利用率很高,在农村地区晾晒食物和干菜非常方便。今天,边肖推荐了两张两层半露台的别墅图片,有点独特。看看你是否喜欢它们。
第一款:二层半带露台和车库的别墅设计图:11.2米
建筑深度:14.1米
占地面积:175.51平方米
建筑面积:408平方米
建筑层数:地上三层
建筑高度:屋顶9.8米,楼梯12.2米
结构形式:框架结构
主要费用:28万~ 30万元





这是一个14x11米的农村普通三层农村别墅的设计图。该方案是为农村生活习惯而设计的,外观简单实用,成本低廉,易于施工。一楼有一个车库,二楼有一个室外独立出入口。室内公寓设计也涵盖了农村住宅的主要功能。
整体外观搭配两级灰色和白色,使其看起来清新干净。大楼后面有一扇后门,方便进出。
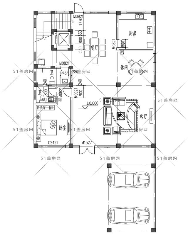
首先,有一个小门厅,这增强了房间的私密性。屏风墙建成后可以修复,客厅有一个神龛。独立餐厅与厨房相连,餐厅有后门。客厅的西侧有一个储藏室和一个农具室。工具房进入房间很方便。大楼的东北侧有一间老年房,也方便一楼老年人的日常生活,浴室在入口处。东南面的车库为车主提供了方便。
除了通向二楼的室内楼梯,还有通向二楼室外露台的楼梯。这种设计既灵活又有趣。客厅宽敞而方形,二楼有两间卧室,其中主卧室有一个独立的浴室。东南角有一个棋牌室。朋友和家人聚在一起打麻将是最好的。南边可以连接到休闲露台。
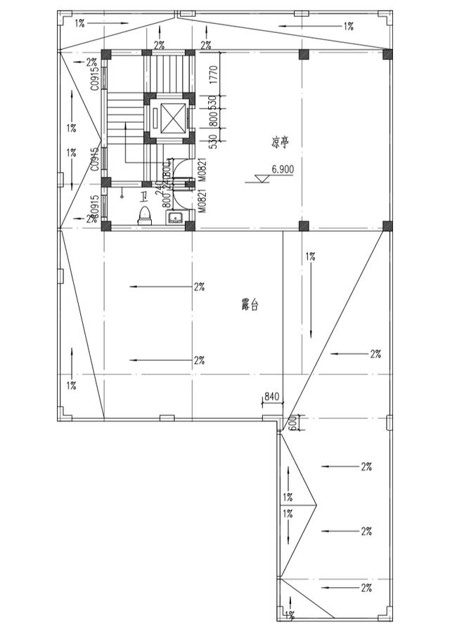
三层计划
这层楼主要是用来休息的。它被设计成有三间卧室,主卧室也有内部保安。西南面有一个很大的室外露台,可以用来晾晒谷物和干菜。
第二段:南二层半独立式住宅。别墅宽度:11.7米
别墅深度:21.6米
占地面积:200.29平方米
总建筑面积:537.77平方米
建筑楼层:两层半
结构形式:框架结构
主要费用:约35万元
外观渲染

这是一套200平米的农村两层半普通自建住宅设计,经济适用,造价仅30万元。该建筑呈L形,侧面有一个开放式车库,车库上方有一个独立的卧室。别墅的正面用黄褐色的真石漆装饰,顶层是白色的真石漆,屋顶是红色的坡屋顶。颜色和谐、温暖、舒适。别墅整体造型简单、大方、有趣,是一栋非常实用的两层半农村自建住宅。建筑的平面图



客厅和餐厅在空间上相互沟通,采光和通风都很好。厨房和餐厅之间还有一个小的开放式休闲厅,当邻居来的时候,在这里打麻将非常方便。大楼的西南角是一个带独立浴室的老年房间,为老年人提供了最大的便利。旁边是一个开放式的双人车库。这里的空间很灵活,当你不停下来的时候,它也可以作为一个露台。夏天在这里吃饭、聊天、喝茶很好。
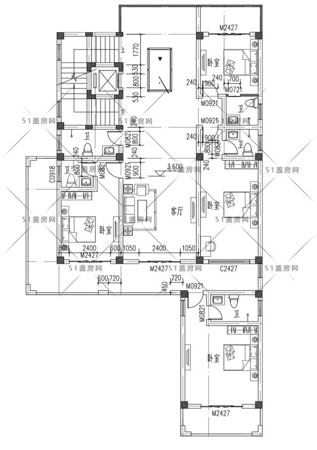
二楼平面图
这层楼有四间卧室,除了东北角的第二间,都有独立的浴室。中间客厅的空间从北到南仍然是透明的,可以作为家庭休闲娱乐的场所。大楼的西南角有一个大阳台,可以连接到附属于大楼的独立主卧室。这间主卧室私密性好,非常安静。它有三面照明,有自己的阳台,让主人住得很舒服。
三层计划
三楼主要是户外活动空间。首先,一个亭子从楼梯上来,整个楼层是一个开放的平台。它可以变成一个屋顶花园,这是最好的户外娱乐场所和干燥的家庭。为了方便起见,还设计了一个卫生间。
转载请注明出自轩鼎别墅设计="://lemeizhai.com" target="_self">://www.lemeizhai.com