
年初,安徽怀远的易总,找到我们轩鼎建筑,让我们为他设计一款既能体现安徽韵味又有自己独特设计的三层别墅设计="://www.lemeizhai.com/Picture.asp?PicClassID=91" target="_self" title="三层别墅设计">://www.lemeizhai.com/Picture.asp?PicClassID=91。经过几天反复的沟通,了解易总想要的设计布局,效果特点的初步想法。设计师开始为易总独家设计:
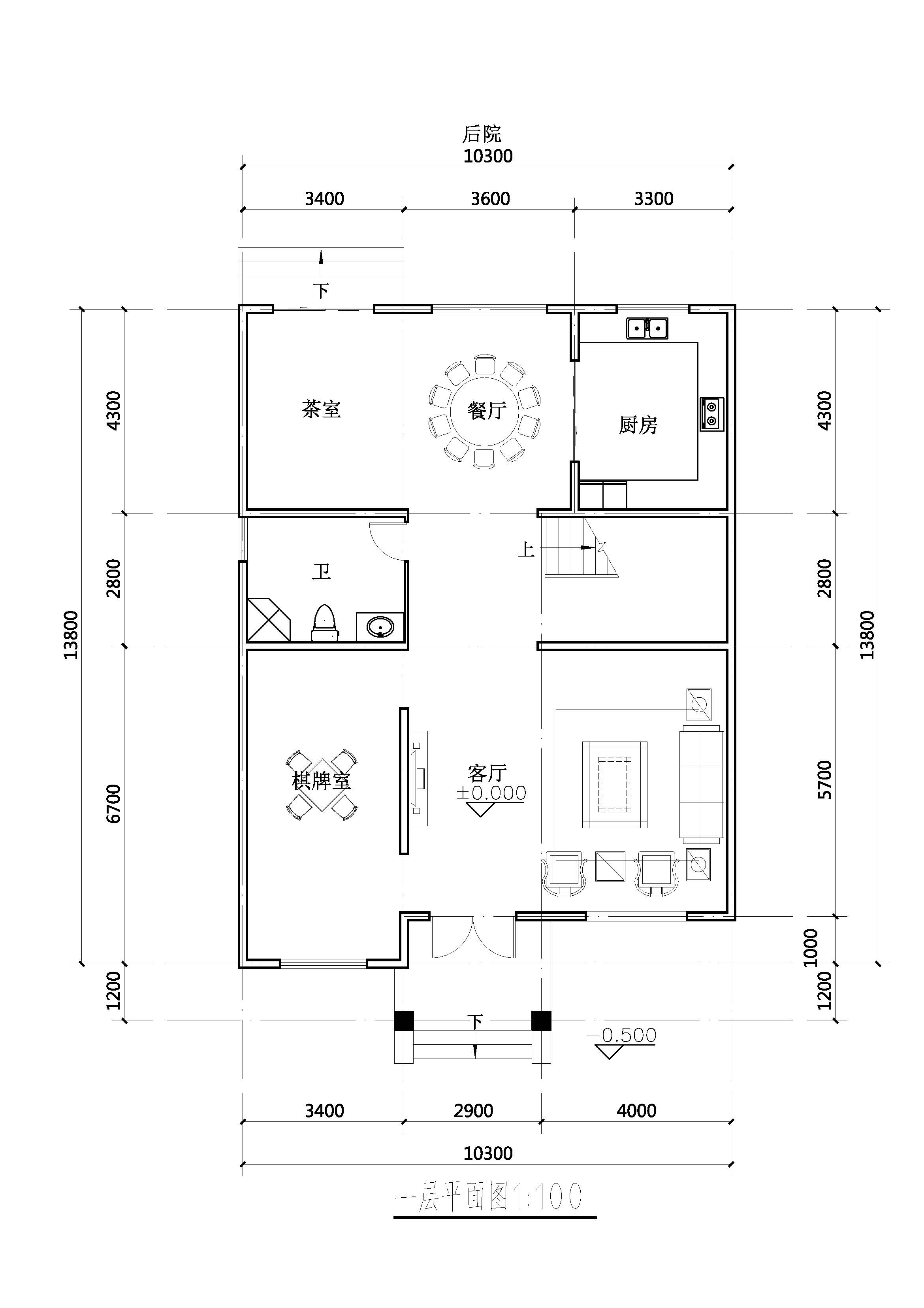
一层方案:

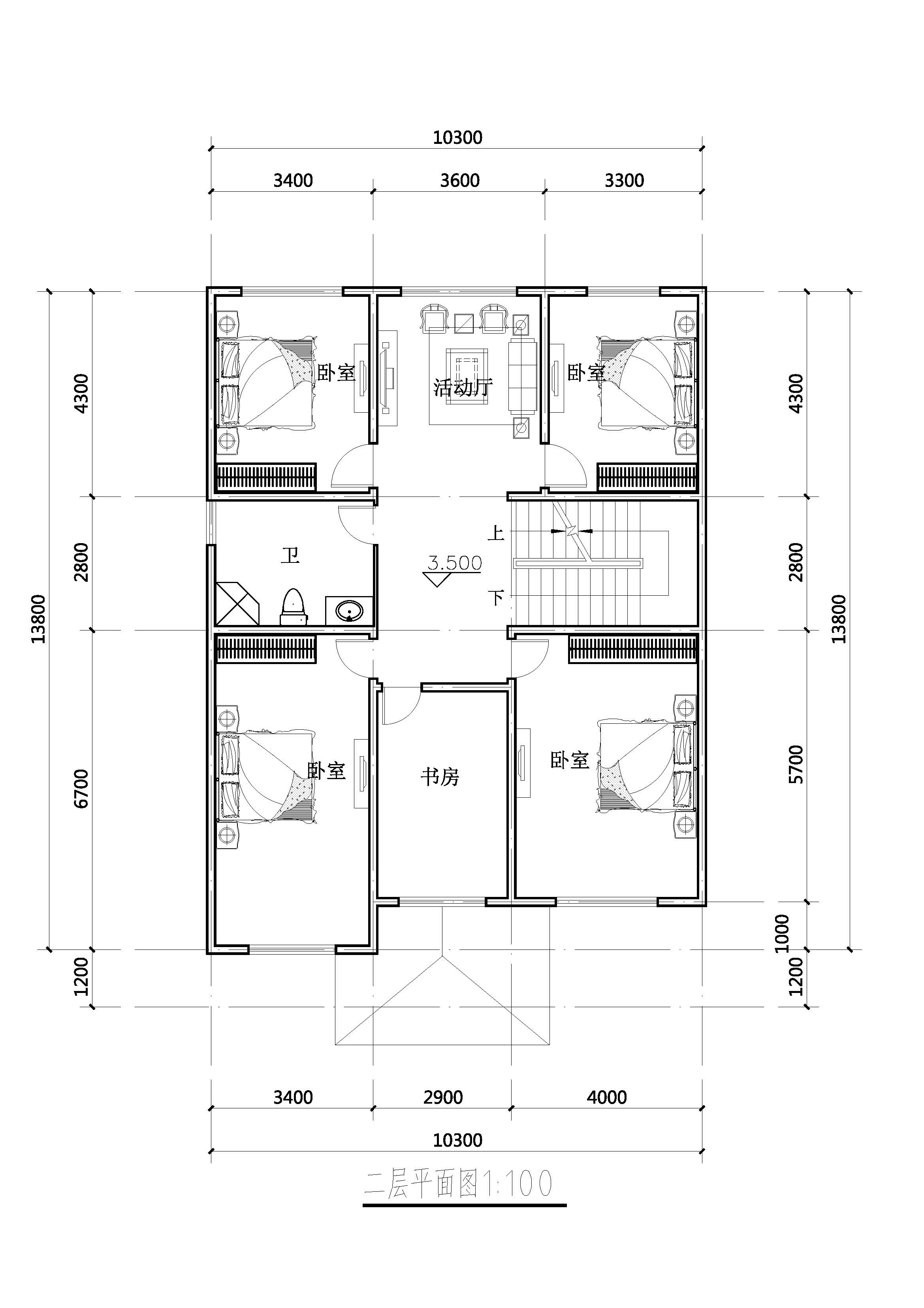
二层方案:

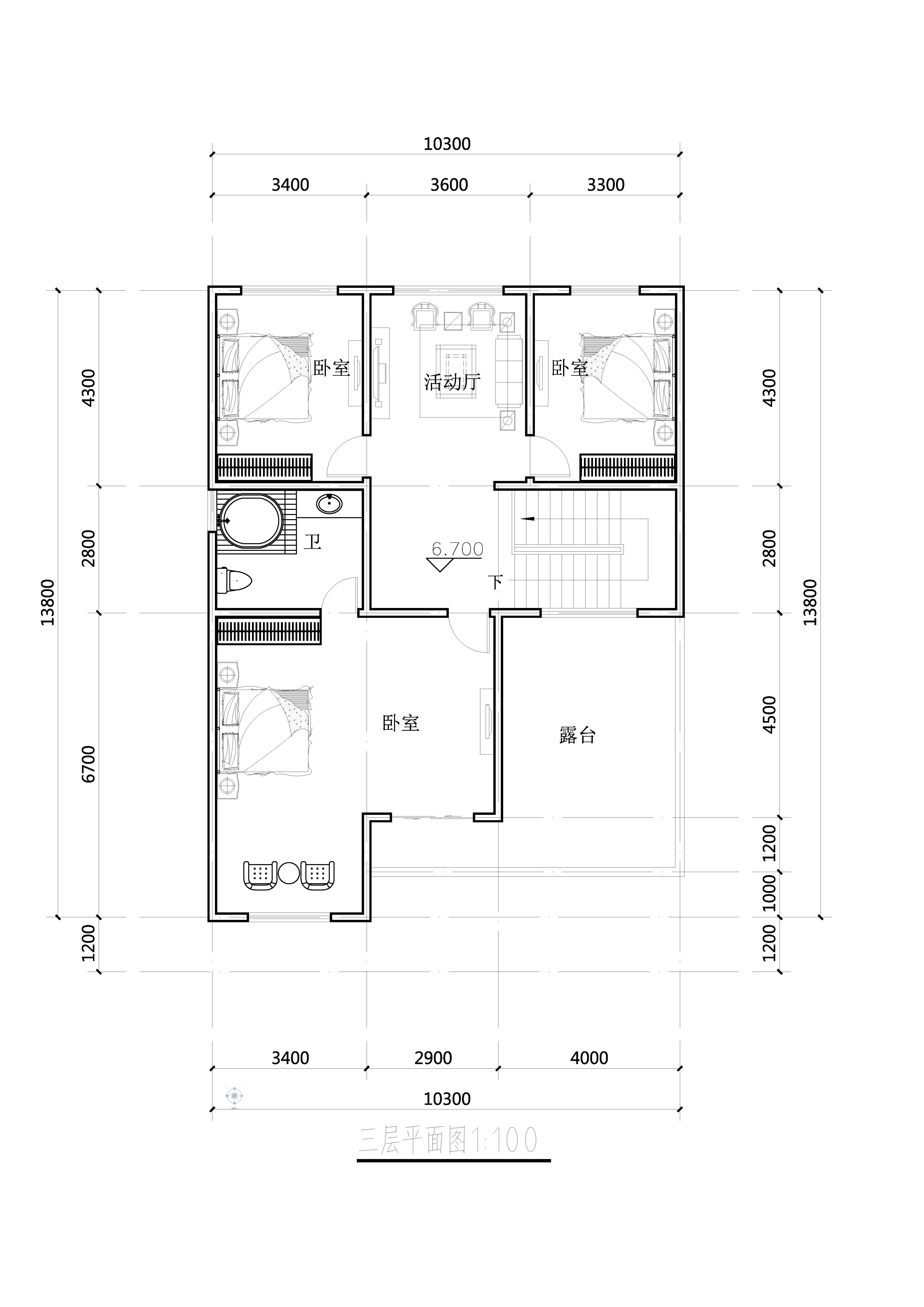
三层方案:

经过几个工作日的沟通,业主和家人的商量,修改了 几稿方案后。最终确认了此款三层中式方案。
在外观上,业主也有自己的见解:如整栋房子的材质,造型;院子和整个房屋的搭配,绿化 ,以及如何做一个气派的大门。希望整栋房子的外观 低调大气。
了解业主需求后,外观效果师后期设计起来也就轻松了很多, 大家来看看这款新中式风含小院的最终稿吧:

小院设计了池塘,亲水平台,栽了很多的绿植,在工作闲暇之余,喝喝茶,赏一下池塘的鱼儿,看看院中花花草草,真的是惬意的很,这份安逸是城里所追寻不到的呢~
图一小院视角:

图二小院视角:

图三大门视角:

在施工图设计上,设计师也是为客户的预算做了深思的考虑。建筑,结构,排水,电气,设计师一起合作,几个工作日三层新中式风施工图纸便全部完成。
现在越来越多的成功人士开始返乡设计别墅="://www.lemeizhai.com/index.asp" target="_self">://www.lemeizhai.com/index.asp,农村自建房已经是趋势,未来新农村的建设会越来越好。