图纸推荐:10.8米12.7米="://lemeizhai.com" target="_self">三层中式自建别墅原设计图纸
作为在农村长大的一部分人,他们深深地依恋着农村。此外,由于城市生活的压力,许多人面临着买不起房子的状态。因此,许多人决定在回家乡盖房子的时候早点动手。事实上,在他们的家乡建一栋房子真的很好,这比住在城市里更舒服。
设计描述:
整个中式自建别墅以黑白为主,精致的轮廓设计使整个别墅典雅庄重,美观精致。
铅灰色中式人字屋顶,展现江南细雨的总体景观,底层雕刻灰色艺术砖,前院墙嵌中式原木镂空窗格设计,活泼灵动,中和了中国建筑的简约、洒脱、独特。结合上层纯白真石漆的配色布局,优雅、典雅、自然。
楼层数:两层
结构形式:砖混结构
风格:中式
占地面积:138
建筑面积:411m2


根据古典建筑大进步的理念,优雅大气的前院被留出,外观稳定非凡,而后院则按照中国建筑的原则建造。结构布局透明而富有魅力,天地人合一,凝重而宏伟。



首层设有绿色生活化粪池,位于前院一角,便于生活污水处理,在不影响建筑格局的情况下,占据了一个盲点。爬上楼梯,客厅布局优雅明亮,现代中国建筑理念生动交融。现代厨房和餐厅在灯光下整洁有序。
一楼设有老人房,方便老人居住,并有独立的浴室设施,可以完善,使用方便,贴心细致,精心呵护。一楼预留一间客房,经过充分考虑,以便来访的亲友在紧急情况下使用,公共浴室设备齐全,方便实用。
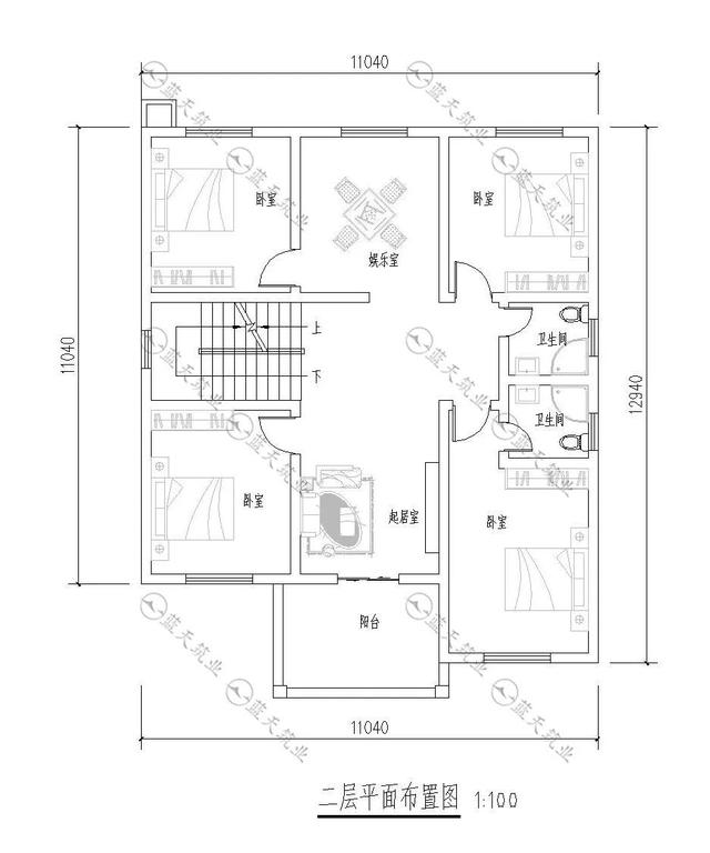
二楼平面图
二楼是家庭成员的休闲生活区,主卧室和第二卧室布置在安静的阁楼的四角,有利于休息和维护,使整个建筑结构对称而明显。
主卧室位于右面房间,配有独立浴室,朝向好,便于及时采光和欣赏风景,显示身份的尊严,但与第二间卧室不同,阁楼配有公共浴室供使用。娱乐室专为家庭活动而设计,设计灵活,让家庭能充分享受多彩的生活。当娱乐室出来时,它是一个带阳台的小客厅。有时,你可以围坐在一起聊天,也可以远眺,看看时间的美丽风景。
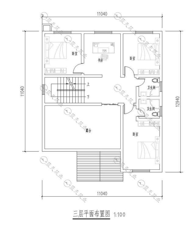
三层计划
三楼有丰富的文学氛围,提供了一个舒适的家庭环境,良好的定位和优越的位置。主卧室配有独立的浴室设施,既尊贵又豪华。第二间卧室靠近书房,居住环境精致安静,是修身养性、读书、升华情操的理想场所。
三楼专门建了一个公共厕所,让家庭生活方便快捷。书房优雅大气,对面的露天阳台精致美丽,俯瞰大地,风景无限
转载请注明出自轩鼎别墅设计="://lemeizhai.com" target="_self">://www.lemeizhai.com