新产品图纸推荐:="://lemeizhai.com" target="_self">乡村三层别墅建筑设计图带效果图,3种不同风格
夏梦的植被很长,房子四周都是树,鸟儿快乐而支持。我也爱我的房子。
如今,农村空气清新,春夏秋冬分明,邻里和睦,这也吸引了越来越多的年轻人住在他们的家乡。当他们回到家时,他们会发现许多家庭建造了小别墅来创造美丽的新农村。
今天,我们分享了一套三种不同风格的乡村别墅,它们的尺寸和外观都很精致。想盖房子的朋友可以和家人分享。


我们运用多维度的参考弧线设计理念,浪漫的艺术风格,测试设计师和建筑师的基本技能和艺术品味,这座别墅将这种纯粹的美发挥到了极致。
欧洲花园别墅体现了浪漫主义。它的建筑外观就像一个精致的奶油蛋糕。草莓色的人字坡顶与乳白色的真石漆立面相结合,底层雕刻着烧黄的文化石。它豪华非凡。应更多地考虑业主自身的气质,而不是一味追求造型,将空间色调与情感相结合,真正回归空间的本质。
楼层数:三层
结构形式:框架结构
风格:欧洲风格
占地面积:17.5米14.9米
建筑面积:678平方米




第二款造型简洁美观,欧式风格彰显大方优雅。大型红色文化砖主要用于营造一种平静优雅的家居氛围,将忙碌的人们从复杂中解救出来。
第三部分在色彩搭配上有所不同,色彩搭配清新、美观大方。用真石漆和棕色文化石营造一个宜居多彩的生活环境。
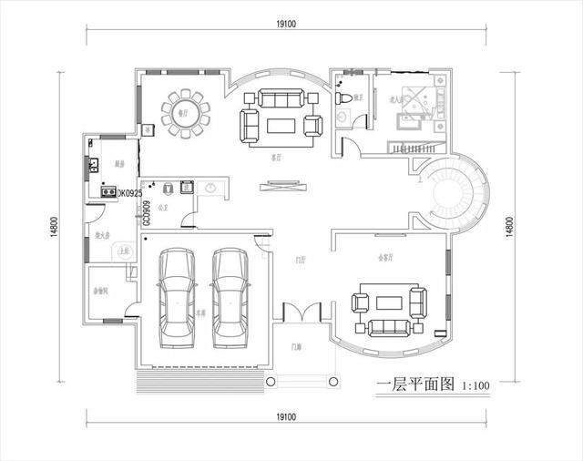
两个客厅,门厅,厨房,餐厅,老人室,浴室,停车位和储藏室
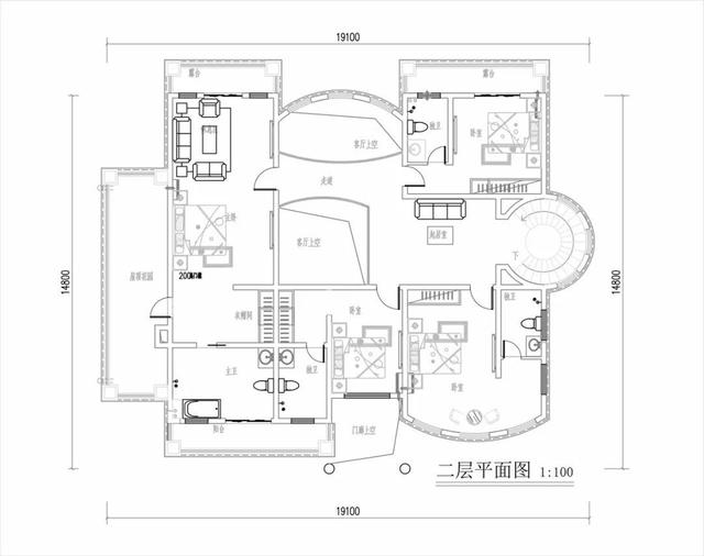
四间卧室,三间浴室,休息区,衣帽间,四个露台
三层布局
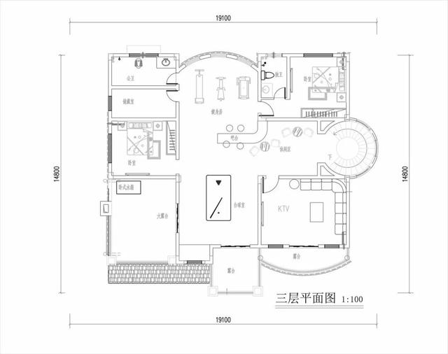
两间卧室,三间浴室,休息区,健身房,台球室,ktv和四个露台
户型布局



这套公寓设计有一个独立的车库,这在农村地区是必要的。这是一个庭院,在那里你可以种植一些花草,平时也可以晒太阳。温暖的感觉是美妙的。

餐厅和客厅相连,增加了室内空间,使房间更加透明,采光和通风更好。



二楼有一个大客厅和四间卧室,对普通家庭来说足够了。
三楼有两间卧室,其余为娱乐场所。在假期里,亲戚朋友可以聚在一起娱乐休闲,在室内无聊,在小阳台上欣赏和休息。
现场表演

这座简单的三层别墅为框架结构,主体造价约140-150万元,宽17.5米,深14.9米,建筑面积678平方米。如果你的宅基地约200平方米,这种类型的公寓可以考虑。
当然,如果你仍然担心效果,那么看看这个案例!造型几乎恢复了效果图,优雅典雅,与外墙颜色搭配,主要采用米色真石漆,搭配烧黄文化石,优雅独特,无疑是一个气质型的房子!
转载请注明出自轩鼎别墅设计="://lemeizhai.com" target="_self">://www.lemeizhai.com