两栋13米宽的="://lemeizhai.com" target="_self">四层别墅,公寓类型好不好,大家一眼就能知道
今年,很多人都觉得赚钱很难,但不管有多难,他们都应该在家乡的地方做好工作,以免让建设计划搁浅!如果条件较好,可以建一栋三层或四层的别墅,如果经济压力不大,可以建一栋一层或两层的别墅。生活不就是这样一步步走下去的吗?
两栋13米宽的农村四层别墅,公寓类型好不好,大家说了算!
01
基本信息:1312.2米,面积171.46平方米,建筑面积612.24平方米,砖混结构,别墅外部用真石漆和小瓷砖装饰,屋顶用红砖铺砌。





平面图:一楼有两个房间,两个大厅,一个厨房和一个卫生间,二楼有五个房间,一个大厅,一个卫生间和一个生活阳台。三楼的布局与二楼大致相同,客厅空间较大,有四层,两个房间,一个大厅和一个浴室,以及一个大型户外休闲露台。
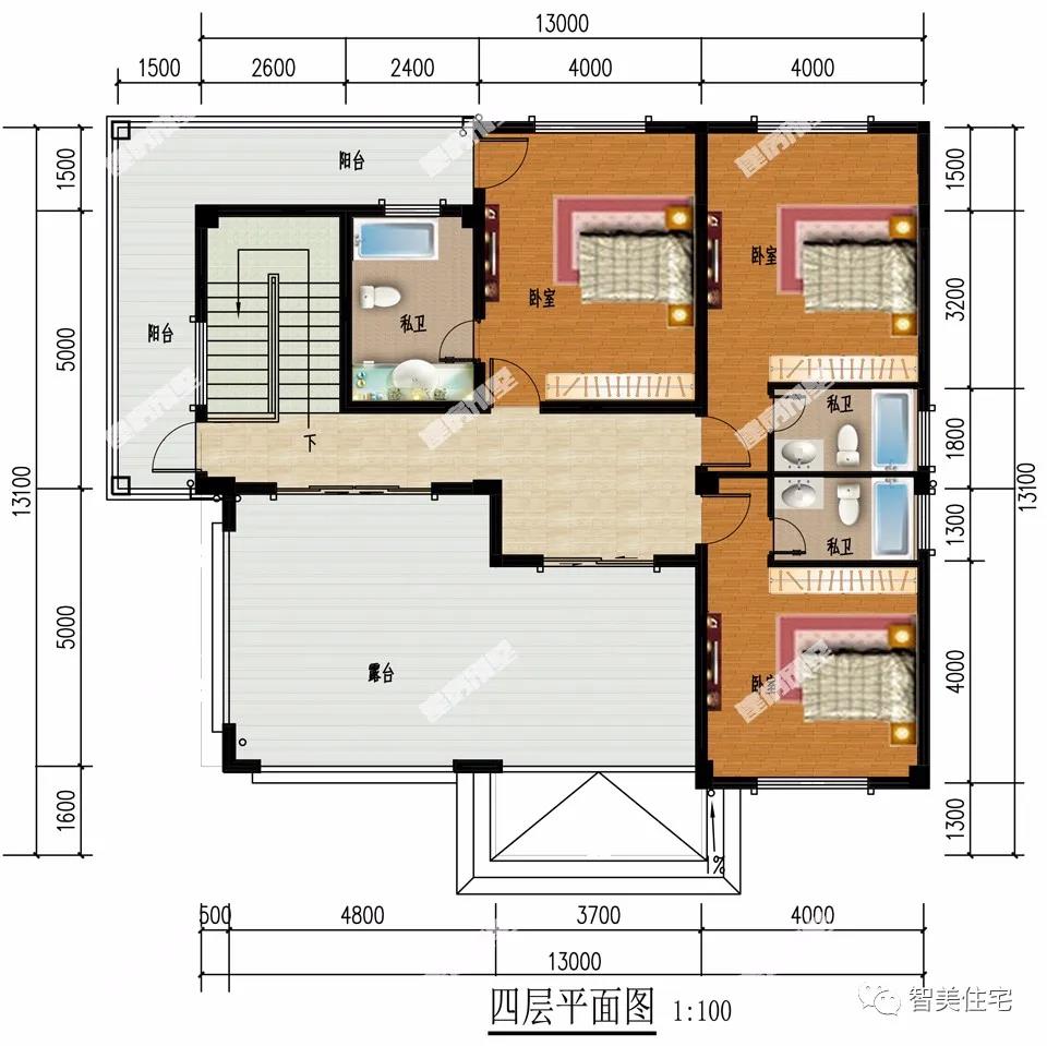
02
基本信息:1311.6米,占地面积140.28平方米,建筑面积576.7平方米,框架结构,别墅外墙主要采用米色真石漆装饰,有两个落地大窗户,非常大气。





平面图:一楼设有一个主房间,一个房间,两个大厅,一个厨房和一个浴室,客厅是空的;二楼设有三个房间、一个大厅、三个浴室和一个观景阳台;三楼有四间卧室,其中主卧室是套房卧室,四楼有三间备用卧室和一个大观景台。
两个单元都是方形的,有宽敞的室内空间和良好的照明。第二栋别墅有许多室外观景阳台,所以住在里面一定很方便舒适。
转载请注明出自轩鼎别墅设计="://lemeizhai.com" target="_self">://www.lemeizhai.com