绝对时尚的小别墅,现代极简主义风格,="://lemeizhai.com" target="_self">农村三层别墅设计,建成后太令人羡慕了!
绝对时尚的小型现代简约三层别墅令人羡慕
在农村,房子代表家庭的“面孔”。

因此,目前农村个体户对外观有很高的要求,不想模仿一样,有自己的个性,要求舒适和理性,最重要的是设计。今天,边肖推荐了这座三层小洋楼,外观简单时尚,与农村不同,高度不显眼。占地120多平方米,适合许多家庭居住。放开福利。


带小公寓和现代极简主义风格的三层别墅
建筑宽度:12.6米
建筑深度:10.74米
占地面积:122.4平方米
总建筑面积:345平方米
别墅层数:地上3层
建筑高度:大木8.8米至屋顶11.4米
结构形式:砖混结构
这是占地122平方米的农村地区二层半别墅的设计图。在欧洲,外观简单而现代,极其简单而精致。外墙立面由文化石和真石漆混合而成,具有强烈的设计感和和谐感。由于建筑高度的限制,三楼为阁楼,延伸至屋顶中部,内部空间高3.3米,采光良好。
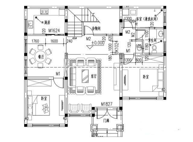
该建筑占地面积122.4平方米,高3.8米。它的主要功能是两个房间,一层楼,一餐和一个厨房。门廊的入口是一个宽敞的客厅,南边有一间卧室,左边有一间卧室。东南角的卧室可以作为老年人的房间,公共卫生,使用方便。这家半开放式餐厅靠近厨房,在大楼的西北侧。一楼的厕所和马桶座是分开的。这种设计可以区分干湿,从而避免使用冲突。浴室有很大的空间,也可以用作盥洗室。利用楼梯下的空间将垃圾存放在储藏室。
双层平面图

带小公寓和现代极简主义风格的三层别墅

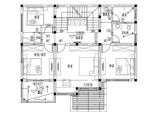
该建筑占地面积111.26平方米,高3.5米。它的主要功能是四个房间,一个大厅和一个浴室。中间是一个小客厅,有四间卧室,一间从南到北。如果家庭人口不多,中间的卧室和西南方的卧室也可以变成客厅。卫生间仍与浴室和卫生间隔离,卫生间设在室外,单独使用,利用率最高。
三层计划

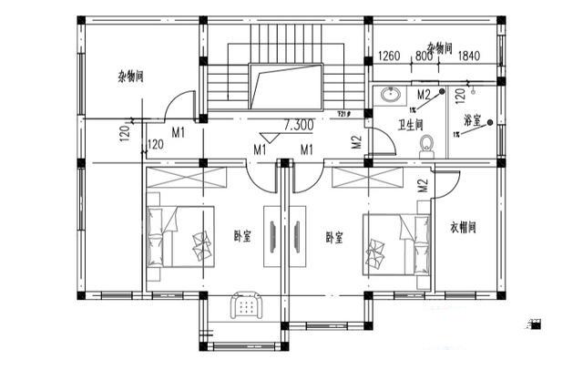
该建筑占地面积111.26平方米,最大高度为3.3米。这个房间有两间卧室,都朝南,东边的卧室安装在一个衣架上。由于建筑的两边都很高,卧室位于中间最高的位置,两边都在杂物和头罩之间,所以设计非常合理。厕所是湿的,是分开的,在北边有一个杂货铺。图纸格式的日志如下
建筑图纸:图纸格式的日志和封面、建筑设计概述、一楼平面图、二楼平面图、阁楼平面图、屋顶平面图、1-5轴立面图、A-K轴立面图、5-1轴立面图、K-A轴立面图、1-1剖面图、楼梯平面图、楼梯剖面图、门斗放大图、门窗隔断放大图、基础平面施工图、基础剖面图、二楼板法施工图、二楼梁法施工图、阁楼板法施工图、阁楼梁法施工图、节点放大图和楼梯示意图
电气图:建筑电气设计交底和图例、配电系统图、弱电系统图、1-3层照明平面图、1-3层插座平面图、1-3层电气通讯平面图、防雷平面图和接地平面图
给排水:给排水施工图目录及设计交底、1-3层给排水平面图、屋面给排水平面图、给排水系统概念图、3个化粪池样图。
定尺套图设计精致时尚,面积只有122平方米,八间卧室,为业主提供了更加灵活的使用空间。图纸包括建筑、结构和水电设计图纸,可在下载和打印后用于施工。
转载请注明出自轩鼎别墅设计="://lemeizhai.com" target="_self">://www.lemeizhai.com