11.9米="://lemeizhai.com" target="_self">乡村别墅设计不能在背后照明,所以这个设计不会影响生活质量!
11.9米的乡村别墅设计不能在背后照明,所以这种设计不会影响生活质量
乡村别墅设计图乡村别墅设计图
许多人计划在老房子上建别墅。这些房子周围或前面通常都有邻居,所以室内照明将是一个关键问题。如果后面不能照明,我只能用正面和两边来照明,所以我选择了这个设计,它对我的生活没有影响。
乡村别墅设计效果图



乡村别墅设计图乡村别墅设计图
后面没有窗户的别墅仍然实用。
公寓类型基本信息
建筑位置:广东清远
宽度:11米,深度:9米
占地面积:109.88平方米
建筑面积:297.24平方米
首层高度:3.8米
建筑高度:12.579
结构类型:框架结构
主要参考成本:约35万
乡村别墅设计图乡村别墅设计图



别墅用棕色文化石和淡黄色真石漆装饰。大门用圆形罗马圆柱装饰,坡屋顶用红色琉璃瓦装饰。
乡村别墅设计方案
乡村别墅设计图乡村别墅设计图
一楼布局描述:一室两厅一厨一卫,卧室有凸窗,所有空间的照明不受影响。
二楼布局描述:三个房间,一个大厅和一个浴室,一个休闲茶室,一个开放空间和一个户外生活阳台。
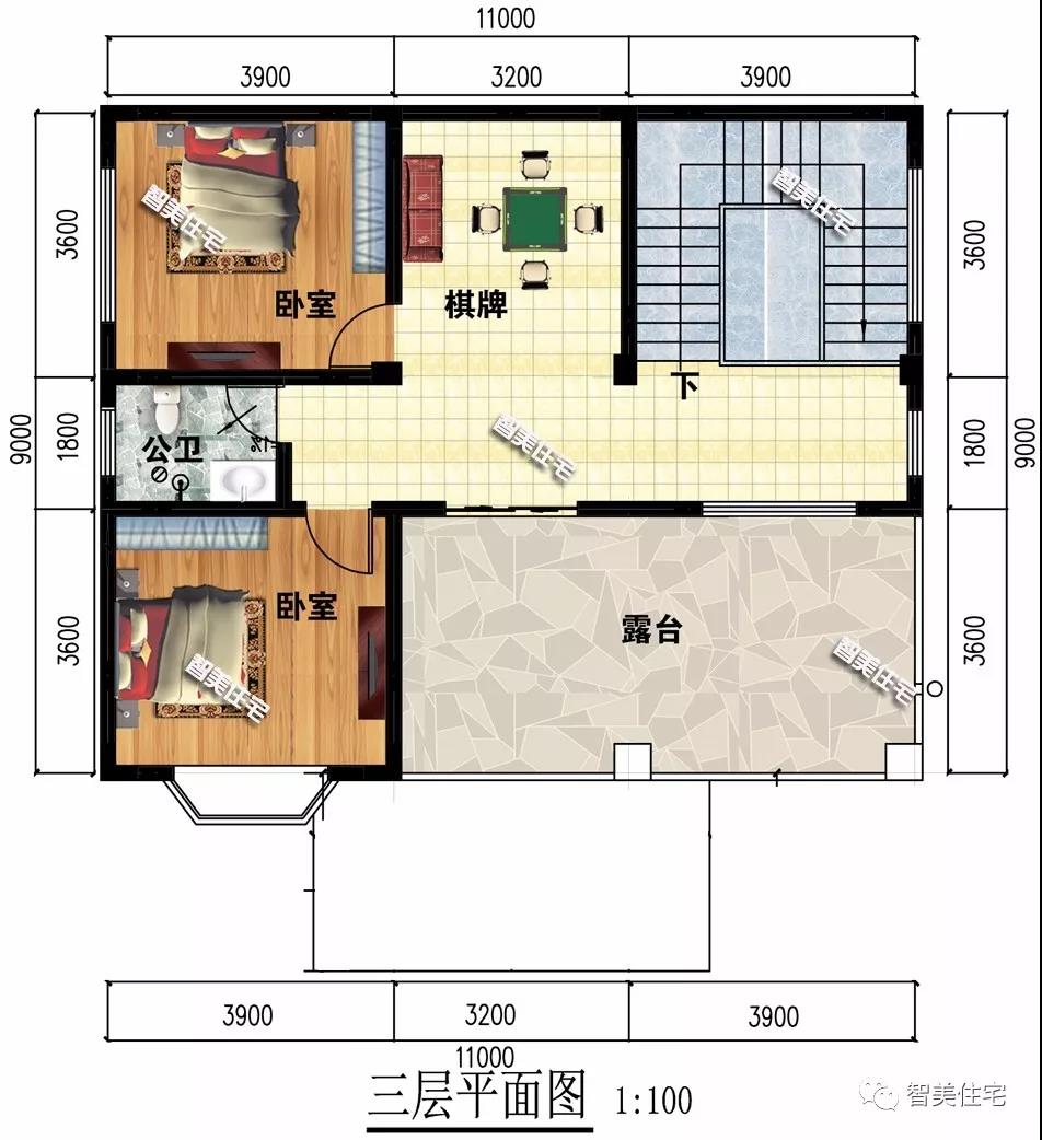
三层楼布局描述:两个房间,一个大厅,一个浴室,外面还有一张大观景台。
镜像版本渲染



镜像版本计划



室内照明是影响生活质量的一个非常重要的因素。如果光线好,每天呆在室内会感觉舒服,这对身心健康都有好处!
转载请注明出自轩鼎别墅设计="://lemeizhai.com" target="_self">://www.lemeizhai.com