来寻找="://lemeizhai.com" target="_self">豪华别墅的装修效果图!170平米的新中式三层别墅,超级大气!

不要寻找豪华别墅的装饰效果图!170平新中国三层别墅,超级气田
豪华别墅的装饰效果图
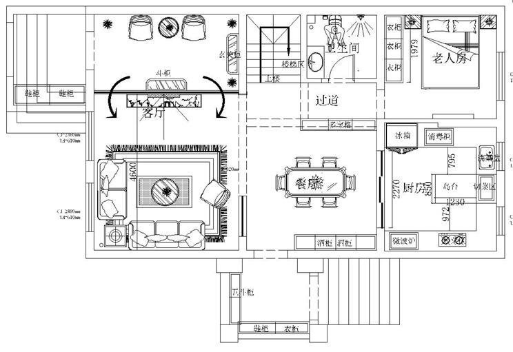
这是团波湖的一座大别墅!170平方米,三层楼,还有一个地下室!整个别墅从北到南都是透明的,功能完善,有些地方浪费空间,因此有必要合理利用空间发挥其功能。厨房扩大了,二楼的阳台变成了衣帽间。
每层平面图:

豪华别墅装饰效果图豪华别墅装饰效果图
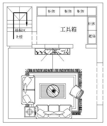
1、地下室平面布置:
2.一楼布局:

3、二层平面布置:

4.三层布局:

效果图欣赏:
豪华别墅的装饰效果图
客厅:

客厅的地板和顶部设计成相互呼应。不同的天花板和地砖被用来分隔空间。定制储物柜增加了存储空间,提高了整体空间利用率。
2.餐厅:
豪华别墅的装饰效果图

餐厅、厨房和浴室相互靠近,这些区域被储物柜和透明玻璃推拉门隔开。每个空间并不相互影响,但它也使空间更加透明和明亮。
3.厨房:
豪华别墅的装饰效果图

整个厨房进行了扩展,制作了一个扩展的多功能岛屿平台,操作更加方便。不同的颜色和不同层次的照明设计,使用起来会更加舒适和方便。
4.卧室:
豪华别墅的装饰效果图

整体设计非常人性化,相应的设计也考虑了不同居住者的生活习惯和需求。通过不同类型的照明方式,满足了人、空间和物品的照明需求,使夜感设备更加安全方便。整体颜色、家具、软衣服等。搭配得当,展现主人的风格和品味。
豪华别墅的装饰效果图

这座新中式别墅的整体设计包括实用性、功能性、空间利用、软服搭配以及风格和效果的体现。反映了主人的地位和对生活品味的追求。
转载请注明出自轩鼎别墅设计="://lemeizhai.com" target="_self">://www.lemeizhai.com