="://lemeizhai.com" target="_self">两层的新中式别墅设计,这是我见过的最好的设计,外观令人惊叹
大家好。我是设计师陈红。今天,我将与大家分享一个新的两层中国别墅设计,它有一个美丽的外观。这是我见过的最漂亮的两层别墅设计方案。让我们看看它。
建筑信息
宽度:12.6米
深度:15米
建筑面积:343平方米
结构:砖和混凝土
风格:新中式
整栋建筑采用新中式风格,立面由文化砖和真石漆制成,一楼为浅色,二楼为深粉色,营造出浪漫而稳定的外观。


门厅采用外飘形式,增加了建筑的造型感,丰富了立面。


南边有一整扇落地窗,就在客厅里,为客厅提供了一个良好的照明空间。
后门有一个半开放的空间,可以用作室外工作台。


室内门窗的装饰效果。窗框是一种经典的中国蕾丝形式,非常漂亮精致。
后门以上下台阶进入家庭,门旁加石狮,非常大气。
阳台和屋檐的细节设计精巧。


让我们来看看建筑东南和西北的四个立面的形状:





最后,看看建筑布局:

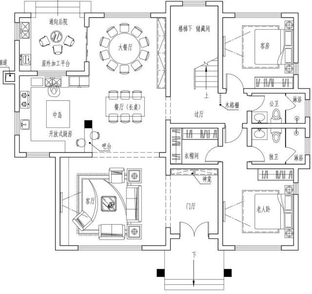
一楼布局:该建筑占地面积充足。一楼有两间卧室,一间给老人,有独立的浴室,此外还有厨房和带长餐桌和圆桌的开放式餐厅。储藏室设在楼梯下,厨房后设半开放式加工平台。

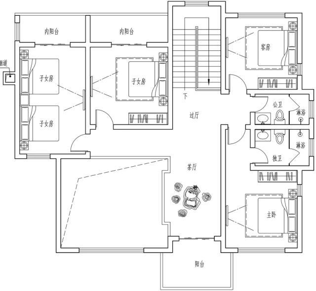
二楼布局:二楼的客厅是空的,有四间卧室,其中一间有带独立浴室的主卧室。
转载请注明出自轩鼎别墅设计="://lemeizhai.com" target="_self">://www.lemeizhai.com