这座150平米的="://lemeizhai.com" target="_self">新中式两层别墅,有着平静的氛围,作为一座传世大宅,它将造福几代人!
一栋好房子不仅能改善我们的生活,还能造福子孙后代。我们怎样才能建造一座百年老宅,即使几十年后也不会过时?众所周知,在一些古老的村庄和房屋中建造了数百年的中式房屋仍然可以居住,甚至成为历史和文化遗产,为后代留下了巨大的财富。然而,中国传统建筑有许多方面不适合当代人的生活习惯,于是新中式风格就应运而生了。它不仅具有中国传统风格的魅力,还具有现代时尚感,居住更舒适,更符合当代人的审美。这座150平方米的两层新中式别墅的总造价不超过50万英镑,但它绝对是一件传世之作,100年后也不会过时。
正面效果图

别墅宽度:11.8米
别墅深度:12.5米
建筑面积:160.87平方米
总建筑面积:283.71平方米
建筑楼层:地上两层
高度:屋檐6.3米至屋顶8.4米
结构形式:框架结构
建筑风格:新中式
这是一个新的中式11x12米农村两层别墅建筑设计,外观简单,不缺乏细节。一楼设有车库,非常方便爱车人士,顶层设有露台,可随时随地进行户外活动。别墅的正面配有乳白色的砖和棕色的仿砖墙。它配有深蓝色坡屋顶。配色经久耐用,不会有审美疲劳。整体效果稳定优雅。
鸟瞰图

别墅类型是方形和稳定,与众不同的气质。门简单而华丽,与二楼的阳台融为一体。
后侧透视图

别墅后面有一个凹阳台,提高了别墅二层的开放性和通风采光性能。整体风格延续积极效果,更加简洁,具有良好的整体性。
建筑的平面图

入口首先穿过入口门廊,这为存放临时衣物、鞋子和帽子提供了空间,并增强了过度进入的感觉,具有良好的私密性。西侧是一个宽敞的客厅,主要用来接待客人。东南面是一间卧室,可以作为老人的房间,门是浴室,非常方便日常生活。厨房和餐厅位于客厅北侧的中间。餐厅很宽敞,是每个空间的沟通渠道。此外,一楼还有储藏室、车库和洗衣房,功能齐全。
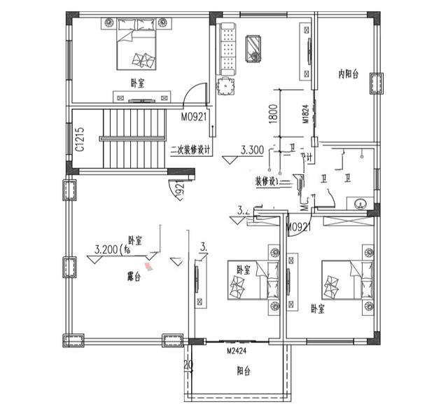
二楼平面图

作为家庭的主要居住空间,这一层有三间卧室,两间在南方,一间在北方,光线充足。南面中间的卧室也有一个大阳台,方便公众在三间卧室中间使用。在二楼北侧,有一个家庭聚会和娱乐的客厅,也有阳台,非常舒适。建筑的西南角是一个开阔的露台,阳光充足,可以种植一些绿色植物,营造一个温暖的室外花园,方便平时晾晒衣物。这幅画有四间卧室,对于一个三代同堂的家庭来说,非常宽敞。它在一楼还有一个车库,在二楼有一个大的露天平台。这绝对是古代传下来的豪宅经典。这些图纸是2020年的最新设计,有一套完整的建筑图纸、结构图纸和水电图纸。喜爱的合作伙伴可以从我们的商店购买,这可以直接用于无障碍建设。
转载请注明出自轩鼎别墅设计="://lemeizhai.com" target="_self">://www.lemeizhai.com