百平的="://lemeizhai.com" target="_self">三层欧式小别墅想活得潇洒。人们盖房子,看这里!
百平的三层欧式小屋想活得潇洒。人们盖房子,看这里!
如今,房地产和开发商正在为富人建造房屋。然而,条件一般的人买不起房子,他们也从不在乎。因此,天上的几滴馅饼雨不会打击那些期待房价下跌的人。我没听说过让印度媒体协会降价,那你为什么要降价?他们不为普通人盖房子,所以我们可以自己盖。今天,小安推荐了一套三层欧式别墅。如果你想活得潇洒,普通人会盖房子,看这里!

这是一栋三层的欧式别墅,面积100平方米。这座别墅宽8.8米,深10米。主体成本约为25万英镑。该别墅采用砖混结构,外墙采用统一的材料和颜色装饰,呈现出别墅的简约氛围。屋顶和屋檐采用深蓝色琉璃瓦,与外墙形成明显的色彩对比,可以更好的看到别墅的立体感,使别墅看起来不平坦。别墅正面有一扇巨大的落地窗,装饰着拱形的窗头,营造出一种优雅而浪漫的氛围。

一楼是宽敞的客厅,左侧是卧室,厨房和餐厅在东北角,公共卫生间在北面,与厨房分开,避免混合气味。

二楼有两间卧室,分别分布在西南角和东北角。东南角的客厅有一个阳台,可以在夏天享受凉风,在冬天享受雪。

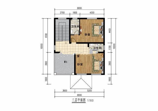
三楼还有两间卧室,位于东面的两个角落,北面的卫生间始终与一楼和二楼相同,节省了资源和建设成本及时间。西南角的露台可以使室内环境更加优雅和健康。
转载请注明出自轩鼎别墅设计="://lemeizhai.com" target="_self">://www.lemeizhai.com