农村="://lemeizhai.com" target="_self">复式三层建筑设计图纸(全套方案实体图纸)汇聚在一起.
今天介绍的老板是一个在互联网工作的90后。他家有六个人一直在保定工作。过了很久,他在城里买了一套三居室的房子,他的家乡离城里不远。在高阳县,基本上每个周末,他都会带家人回村子放松,吃家乡的食物,钓鱼,散步,打牌,和邻居聊天.这个主人基本上每天都在电脑前花费脑力,这真的很难。而且,老家离保定只有40分钟的车程,所以房主总是希望在农村建一栋漂亮的房子,这一直是这对夫妇的别墅梦寐以求的。掩盖起来,你可以带你的祖父母住在一起。想想看,一个大家庭是幸福和美丽的!

说白了,我什么都不记得了。在房主和他的妻子有了这个想法之后,今年上半年,一栋三层的复式别墅在他们家乡的家园上建成了。完工后,夫妻俩决定卖掉城里的房子,直接回家。每天开车40分钟去上班是值得的。
让我们一起看看边肖的别墅是什么样的,这样这对夫妇就能记住很多了!~后面有一幅实物地图展示~



公寓类型基本信息介绍:
面积:13.3米* 14.6米,约140平方米;
建筑高度:三层;建筑高度:12.8米(含屋顶);斜坡屋顶;
三楼有一个车库(如果你不想要车库,你可以和主人一样,把它改成一个独立的厨房也不错),有一个屋顶花园,在大楼的中间有一个复式公寓!
封面后,实体图显示:
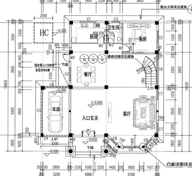
布局图:




一楼:玄关、客厅、车库、餐厅、厨房、浴室和客房;
二楼:阳台、卧室、露台、阳台、书房、浴室、卧室、浴室、卧室和客厅;
三楼:露台、卧室、浴室、书房、阳台、露台、活动室、卧室、浴室和卧室;
附言:我想知道你对边肖推出的这个三层别墅方案是否满意?如果你有什么想说的,你可以在下面留言和/或私人留言。
转载请注明出自轩鼎别墅设计="://lemeizhai.com" target="_self">://www.lemeizhai.com