选择了三套="://lemeizhai.com" target="_self">农村自建住宅设计图纸,面积80-120平方米,非常实用
农村朋友在建造自己的房子方面变得越来越英勇。从每个人的留言中,我们可以看到很多人想要三层楼的建筑设计图。边肖没有让任务蒙羞,为每个人挑选了三套。因为我不知道自己到底想要多大的建筑面积,所以我选择了三套,面积从80平方米到120平方米不等,外观大气,内部布局合理实用,希望能对你有所帮助。
第一套:

这是一个面积只有86平方米的小公寓,宽8.6米,深10米,建筑高度10.85米。外部装饰简单,但形状独特,卧室窗户突出,非常有质感。
布局图:



这套公寓有五间卧室,都是套房,生活质量有保证。客厅、餐厅、厨房和几个客厅都有充足的室内活动空间。为了方便进入农村,厨房里有一个后门,顶楼有一个很大的露台,非常实用。
第二套:

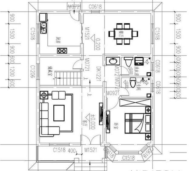
拼凑的形状和弯曲的墙壁处处体现了设计师的意图。设计尺寸为宽11米,深9.7米,建筑面积105米,建筑高度13.5米。
布局图:



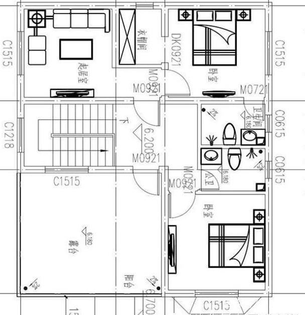
这套公寓设计有五间卧室,都位于大楼的东侧。客厅太大了,设计成空的。进入大楼的豪华感倍增。客厅配有阳台和露台,让人住在大楼里感觉很舒服。厨房和餐厅位于建筑的东南角,符合农村厨房的布局要求。此外,大楼的客厅里有侧门。
第三集:

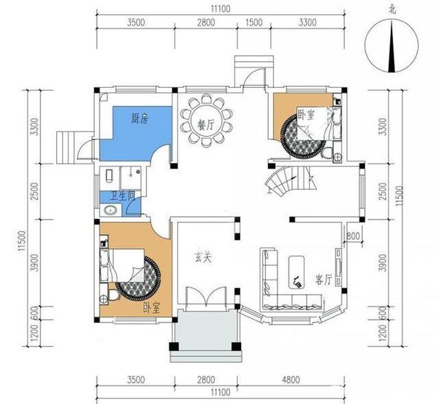
这也是一个空设计的客厅。大落地窗的玻璃可以看到效果,非常霸气,确保良好的照明和通风。它有自己的车库和多个阳台和露台,以方便户外活动。设计尺寸:宽11米,深11.5米,建筑面积124平方米。
布局图:



与前两套不同,这套公寓总共设计了10间卧室,所以家里应该有足够的人。门厅、客厅、厨房和餐厅功能齐全,阳台露台和洗衣亭分工明确。
你感觉如何?我们在这里等待你的宝贵意见。你的意见是我们改进的方向。
转载请注明出自轩鼎别墅设计="://lemeizhai.com" target="_self">://www.lemeizhai.com