两栋="://lemeizhai.com" target="_self">带平屋顶和庭院的豪华乡村别墅最适合乡村设计!
别墅的设计风格有很多种,可以分为简单型和豪华型。以下小系列将推荐两套豪华别墅设计。来看看有没有你喜欢的!
图纸号。yg517
别墅风格:现代
占地面积:279
估计费用:760,000
别墅楼层:二楼
建筑面积:21.5米13米
建筑面积:501m2
建筑结构:砖混结构

别墅整体为现代风格,整体结构为方形,视觉对称。庭院的设计为居住者提供了足够的活动空间。


立面的颜色相当稳定,玻璃元素的使用不仅使整个房子更轻,而且有助于室内照明和通风。院子里设计了两个停车位,方便你停放自己的车,还可以种一些树和花来增加绿化面积。
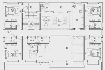
一楼的入口为入口,客厅和餐厅由走廊隔开,便于沟通。这四间卧室满足了生活需要。


除了休息空间,二楼还设计有室外露台,增加了居民活动和放松的空间。
图纸号。yg124


别墅风格:现代
占地面积:292
估计费用:660,000
别墅楼层:二楼
建筑面积:24.4米12米
建筑面积:600平方米
建筑结构:砖混结构
该房屋为两层现代风格,立面以白色和木质为主,整体简单大方,充满自然质感。车库、公共厕所和菜园都设计在院子里,非常适合农村生活。

由于双拼法设计,一楼的布局是对称的,入口是客厅和餐厅,厨房是在一个独立的空间,两个卧室可以作为客房。

二楼是客厅,阳光房设计在中间。天气好的时候,你可以坐在这里和朋友一起休闲。
转载请注明出自轩鼎别墅设计="://lemeizhai.com" target="_self">://www.lemeizhai.com