这座60万平方米的别墅装饰有="://lemeizhai.com" target="_self">中式风格别墅设计,每个看过的人都称赞它!


如何更好地设计一个588平方米的房子?这组案例来自敏捷白鹭湖别墅。这座588平方米的房子被设计成别墅。装修费用只有60万元,装修风格是中式的。让我们看看他是如何设计的。
这套案例是一种新的中国设计风格。新中式总是强调轻装饰和重装饰,而这套样板房的设计者大胆地以可追溯的方式设计了这套样板房,使用了大量的紫檀木和乳白色的灯,创造了盛唐的家居环境,这也体现了主人对中国深厚文化的热爱。
客厅应该用什么颜色?客厅适当的色彩搭配不仅可以增强装饰风格,还可以丰富空间。一般来说,最合适的选择是浅色、纯白色调和暖色调,以清新透明的色彩达到“宽敞明亮”的客厅空间效果。

对称美是人类发展最美丽的形式之一,它与中国风格美不谋而合。客厅设计以非常巧妙的设计和稳定的内涵诠释了主人的家居品味。电视背景墙彻底摒弃了过去的大理石背景,大胆创新地采用红木作为电视背景墙,展示了其古色古香的魅力。
在装修卧室之前,我们应该先确定它的装修风格。通常,卧室的装饰风格、布局、颜色和装饰应该以床为中心。因为床占据了卧室大部分的装修空间,所以只有先确定床的位置,才能选择卧室的装修风格。
主卧室:祥云桌,水墨竹,冬梅多情,冷不舍。

餐厅的装修是为了创造一个好的就餐范围,所以我们必须掌握风格。无论是田园风格还是现代简约,我们都必须掌握餐桌和椅子的风格和材料。选择能改善用餐气氛和气氛的暖色。灯光设计也要优雅柔和,这样才有浪漫的气氛。
餐厅:屏幕和“四先生”竹子充当了茶室和餐厅之间的过渡,有一种在她的吉他后面仍然藏着她的半张脸的感觉。
材料的选择是儿童房的重点。孩子们很活跃,抵抗力差。因此,在选择材料时,我们必须选择环保材料,不要在房间里使用太多的油漆。这样的房子会有过量的甲醛。定制家具时,不要选择有尖角的家具,尽量把它们磨平,以防儿童撞到。
公主房:每个女孩都有自己的公主梦。以红色和粉色为主题的公主房,上下结构设计既满足了生活的需要,又以一颗小小的心满足了公主的梦想。
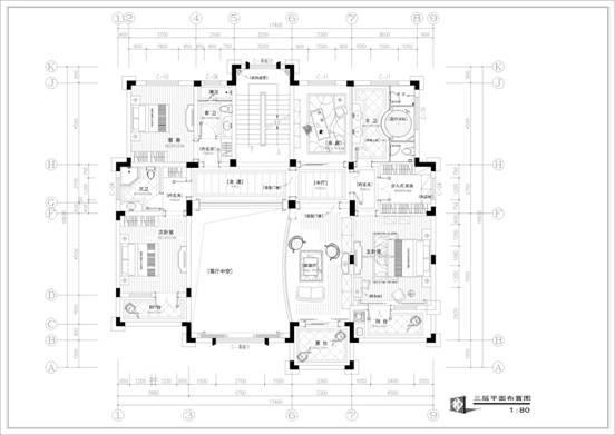
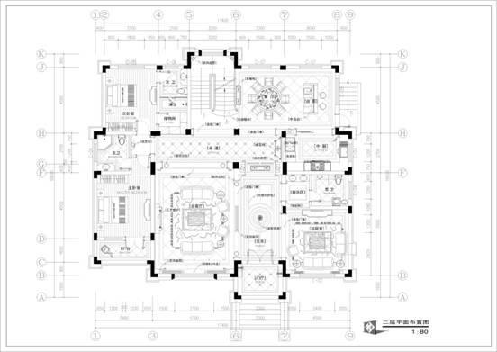
以下是雅居乐白鹭湖别墅社区588平方米别墅的平面图


。
【惠州昊天装饰】辛平白鹿湖588中式别墅案例赏析——布局1【惠州昊天装饰】辛平白鹿湖588中式别墅案例赏析——布局2
以上是边肖为朋友带来的一个588平方米的中式设计案例。这个中式设计让你感到兴奋吗?总的来说,588平米的房子适合做别墅,高端中式风格也值得你选择。如果朋友装修,他们可以参考这套案例中的装修注意事项,避免在装修中走弯路。
转载请注明出自轩鼎别墅设计="://lemeizhai.com" target="_self">://www.lemeizhai.com