="://lemeizhai.com" target="_self">中式别墅设计有庭院,面积超过100平方米,可以由每个人建造!

目前,越来越多的别墅建在中国的许多农村地区。他们大多热衷于走欧美路线,而其他人则主要是东南亚风情或现代极简主义风格。看到太多异国风情真的很容易导致审美疲劳。而且,北京四合院、徽州建筑和苏州园林似乎最有韵味。
如今,由边肖带来的100多栋带平庭院的别墅都是中式的。


白色墙壁和灰色瓷砖的风格几乎突出了主人的优雅氛围。在农村建这样的别墅,真的很有高雅人士的意境。
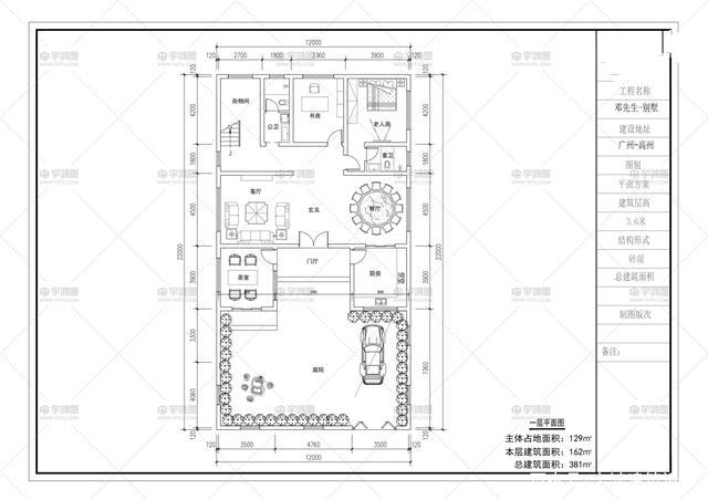
这座别墅宽12米,深22米。主楼层面积为129平方米,整个楼层面积为162平方米。这座别墅的建筑结构是砖和混凝土的。
有一个大院子,不仅可以让孩子们玩耍,还可以晒太阳,喝茶,甚至停车。
这座中国别墅的平面设计图纸如下



在一楼,从大门有一个庭院,在门厅周围有茶室和厨房,左边有客厅,厨房旁边有餐厅,一楼有书房和杂物间。我们还为老年人设计了一个房间,在家里为老年人设计了一个独立的套房。
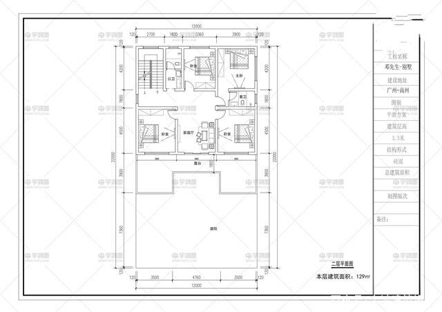
二楼有四个房间和一个大厅,主卧室有独立的浴室,家庭大厅晚上也可以坐在一起看电视。在茶馆和厨房的上方设计了一个露台,在那里你可以喝茶、晒太阳。
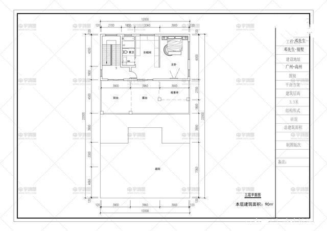
在三楼,只设计了一个主卧室加上衣帽间和一个独立的套房,其余的是露台和观景台。站在观景台上,你可以眺望远方,有一种不同的感觉。
这样的中式别墅让你一见钟情吗?
如果你喜欢,尽快给自己一个
转载请注明出自轩鼎别墅设计="://lemeizhai.com" target="_self">://www.lemeizhai.com