这座11.4×12米的="://lemeizhai.com" target="_self">三层乡村别墅设计有一个大露台,落地窗和丰富多彩的功能
在我的印象中,成长总是很突然。
因为一件事,因为一个人,
也许这只是一个词。
就像成年人常说的:
这孩子突然长大了。
事实上,变老只是时间问题。
“人类的智慧包含在两个字里:
等待和希望。"
当它们随着时间消失时是什么感觉?
世界是大的,蜉蝣是小的,小孩子是老的。
如果你想买桂花和携带酒,你永远不会像一个少年旅游。
有时花开花落,人们总想变老。
但是总会有人慢慢变老,
放慢生活节奏,喂马,砍柴,晒太阳,
在乡下建一座小房子,在房子前后种些果树,
夏天在树下吹凉风,秋天和一些水果一起享受美好时光。
欣赏春天盛开的花朵,冬天在树下堆雪人。
生活中总是有无尽的快乐和无尽的色彩。
虽然它像水一样简单,但它很快乐。
愿你有一些爱,一些期待,不辜负此生。
建筑参数:
建筑面积:11.4米12米
占地面积:136平方米
建筑面积:420平方米
建筑结构:砖混结构
楼层数:3层
主要预算:400,000

这种房子也一定是你喜欢的,比如大露台,大落地窗,简单大气的外观,方正的造型,没有花哨的颜色,没有霸气的雕刻,没有占地几千平方米的豪华,一切都是自然堆积的,给人一种舒适愉悦的感觉。这个小别墅是最受欢迎的,也是最现实的,最适合农村的房子,满足你所有的期望。

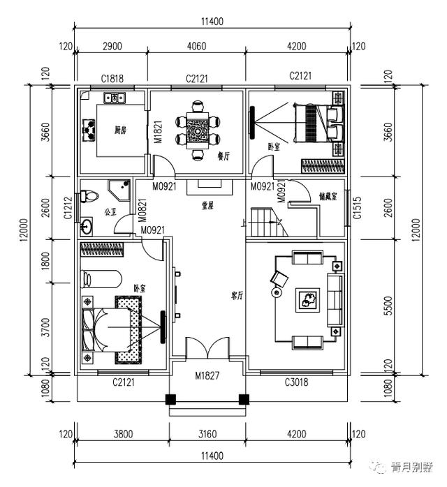
一楼设有客厅、主厅、餐厅、厨房、储藏室、两间卧室和卫生间。布局大方合理,功能规划一目了然,奢华的大门展现出非凡的姿态。大客厅面积大,在空间上与主房间相连,表现出极大的氛围。与落地窗设计相结合,增加了视野,更时尚、更美观,更尊重人。主房间位于家庭最庄严的地方,符合乡村习俗的要求。储藏室在楼梯下面。储物方便,厨房和餐厅相对独立,不会因小门进入餐厅而干扰客厅区域。南方的卧室采光充足,靠近卫生间,方便日常生活,适合老年人,有利于身心健康。

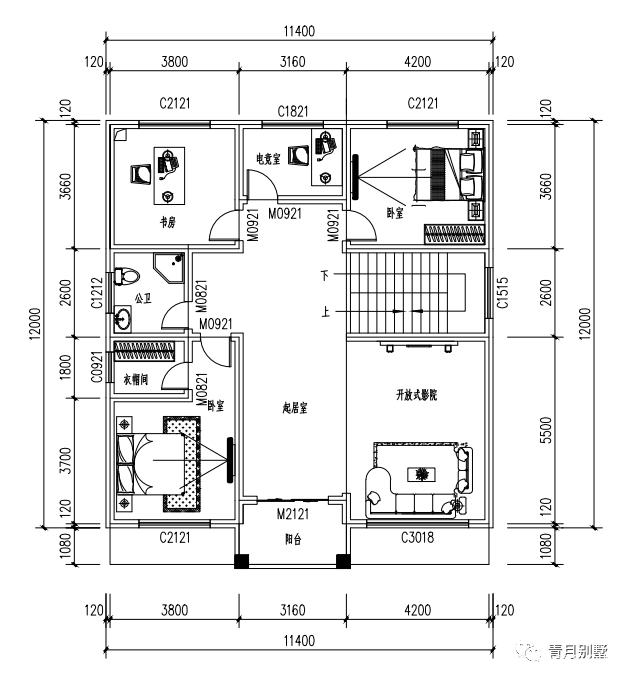
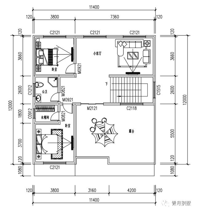
二楼设有客厅、开放式电影院、自习室、电子运动室、两间卧室、卫生间、衣帽间和阳台。二楼功能设计丰富,充满青春时尚的色彩。客厅与阳台相连,使房间保持空间流通和充足的照明。它也可以用来烘干衣服。它非常实用。开放式家庭影院也有很大的面积,提供了精神娱乐的生活空间,也有利于增进家庭成员之间的感情。电子运动室的设立是为年轻人保留的空间,与自习室无关。有必要集中精力学习和享受游戏,这也显示了主人的。三楼有一个小客厅,两间卧室,衣帽间,卫生间和露台。西侧功能布局与二层相同,有利于水电管道的安装,也为日常生活提供了便利。小客厅与大露台相连,空间宽敞,空气清新,为生活提供了很好的享受。大露台既可以休闲观光,也可以作为日光室,非常方便实用。就个人而言,这是一个必不可少的功能设计,可以极大地丰富生活方式的可能性。
我认为这个三层别墅最大的特点是充分利用空间,既充分满足了生活的需要,又保证了功能设计的多样性。此外,这里没有多余的设计,一楼有一个公共警卫,也没有公寓,这对某些人来说可能并不完美,但这也是许多人追求的,这取决于个人。
装饰风格参考:


转载请注明出自轩鼎别墅设计="://lemeizhai.com" target="_self">://www.lemeizhai.com