建别墅不需要太过花里胡哨,简单一点就很好,时尚现代才是现在的主流,别墅漂亮自己心里也舒服,别人看了也会夸赞你的品味,所以建别墅不管你用来干什么时尚好看的房子一定错不了。今天给大家推荐孙总私人订制的办公别墅,这套别墅时尚漂亮洁白的墙体非常简洁,有一种干练效率的感觉。
效果图:

别墅层数: 二层
别墅风格: 现代
占地面积:300㎡
开 间:22m
进 深:15m
建筑占地:22m×15m
建筑面积:610.04㎡
主体造价:73.0~78.0万
建筑结构:砖混结构
效果图:


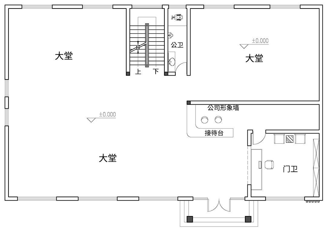
主体设计:。

客厅、餐厅、厨房、卧室、公卫、阳台、露台。

。
转载请注明出自轩鼎自建房:="://www.lemeizhai.com/Picture.asp" target="_self">://www.lemeizhai.com/