例子说明:如何一起盖房子,你一定要看看="://lemeizhai.com" target="_self">独栋别墅设计!
一个兄弟怎么能建造一个有足够大的家园的房子,却还想单独建造自己的房子呢?那你出局了。如今,独栋别墅,一个非常受欢迎的兄弟,不仅看起来不错,有霸气的一面漏,而且更近,更方便在家照顾老人和互相照顾。今天,我给大家介绍一套别墅的例子,安徽六安王宗的双拼欧式别墅!过来睁开你的眼睛!
01
施工参数成本
宽度:20m
深度:12米
占地面积:240平方米
建筑面积:650平方米
建筑结构:砖混结构
估计费用:80万

注:根据不同地区的材料成本、基础差异、人工成本和运输成本,主要成本会有所不同。
02
外观渲染



我们的设计师经过前期的充分调研和深入探索,完成了这套高品质的独栋别墅的渲染和平面设计。最终渲染的确定也标志着它即将进入正式的施工图阶段。
雄浑霸气的三层双拼给人一种身临其境、大气磅礴的感觉。事实上,单户别墅是一种对称的房屋建筑结构,设计有左右开户结构,满足了两户家庭的居住空间,但同时也不失两户家庭之间的紧密沟通,减少了距离感。
别墅的外观设计采用了简单的欧式风格,乍一看,有点新的中国风味,看起来非常干净清爽。由于双重拼写结构,所有的内部设计在左侧和右侧基本相同,所以我们只能说一面当我们告诉平面图。
03
内部结构图



别墅一楼设有一个主房间、客厅、餐厅、厨房、储藏室、卧室、浴室和洗衣房。
主房间和起居室的功能没有什么区别。家庭通常在主房间休息,等等。客厅布局丰富,一般用于招待客人,环境优雅,空间宽敞。一楼也有基本功能区,卧室可以作为老人的房间,避免了老人在家上下楼梯的麻烦。
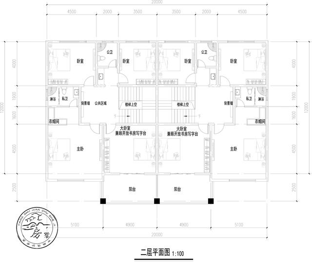
别墅二楼有四间卧室、浴室、书房和阳台。
主卧室配有私人浴室和衣帽间,提高了主卧室的相应档次功能。大卧室还配有开放式书房的功能,阳台入口也放置在大卧室内。开放式书房设计不仅在环境上有独特的优势,而且可以随时休息,阳台也可以相应地晾晒衣物。
别墅三楼有三间卧室、书房、卫生间、露台和日光室。
不管人口多少,卧室绝对足够了,甚至额外的卧室也可以用作客房或应急用房。孩子也有自己独立的空间,这更有利于孩子身心的健康成长。日光室直接通向露台,在那里你可以在冬天沐浴在温暖的阳光下,欣赏月亮,在夏天和秋天在露台上吃晚餐。由于三楼的地势已经很高,你可以享受每天的观光。
转载请注明出自轩鼎别墅设计="://lemeizhai.com" target="_self">://www.lemeizhai.com