最适合中国人居住的中式别墅设计,一庭一院扩大东方的雅致
不知你是否想象过,在山水田园里,盖了属于自己的中国式房屋。 一年四季可以看到各种美丽的景色,茶、闲聊、读书在庭院里建成,感受自然的美丽舒适。 今天我给你们看几个新鲜出来的中国式盒子,面积虽大,小,但是有喜欢的
一、四川成都中式别墅

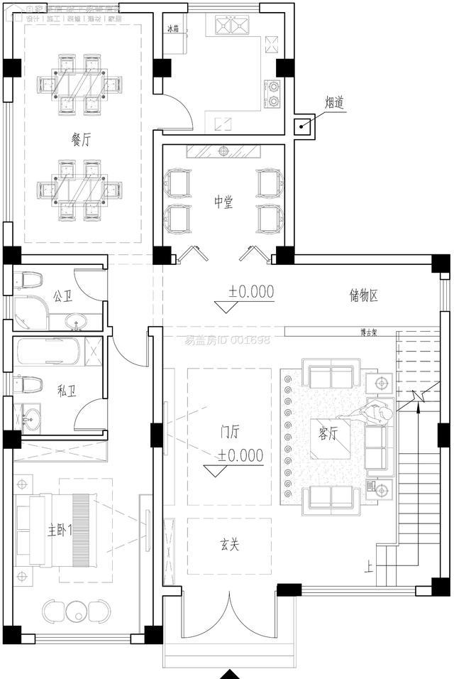
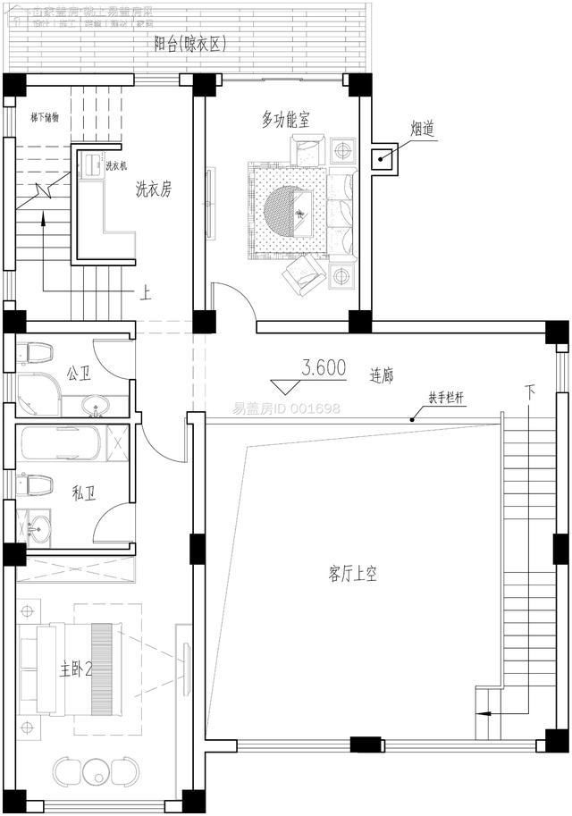
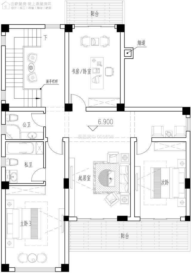
建筑尺寸: 11.2m16m
建筑面积: 435.3
占地面积: 150.8
建筑结构:框架结构
参考成本: 88万元(装修费用另行修订)


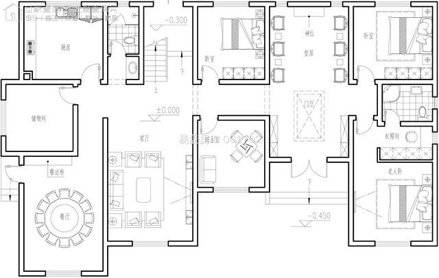
户型概况: 4室2厅6卫1厨1堂屋2储藏1洗涤2休息区1多功能室1书房/卧室3阳台
在基地的三环邻近,为了提高采光和透光度,对正面的大开窗和西北侧的双阳台进行了组合修订。 立面采用传统的白墙黛瓦,屋顶采用硬山和休山式等中国式的形式,演绎出古朴高雅的感觉。
一层平面图(右上角为北)



二层平面图(右上角为北)
三层平面图(右上角为北)
二、四川南充中式邸

建筑尺寸: 17.8米13.8米
建筑面积: 175米
占地面积: 175
建筑结构:砖混结构
参考成本: 46.5万元(按装修费用修订)
户型概况: 5室1堂屋5卫1厨1柴室1棋牌室1露台1酒仓

整个建筑采用了大量的蓝砖、中国式窗框等传统要素装饰材料,显示出独特的复古韵味。 为了满足当地的生活习惯,特意在西侧设置了料理、柴房、酒仓机能室,不影响居住空间。
进一步俯视图(左上角为北)

三、湖南娄底中式别墅

建筑尺寸: 21.6米13.5米
建筑面积: 572.5
占地面积: 240
建筑结构:砖混结构
参考成本: 91.6万元(按装修费用修订)

户型概况: 8室2厅6卫1厨1堂屋1储藏1洗涤3帽子1茶区1娱乐1露台
建筑是中式常用的白墙黛瓦,浮雕像与中式栏目干部材料相结合,呈现出浓郁的古典风韵。 造型错误,加上细节装饰,整体更大气,层次感更丰富。
进一步俯视图(左上角为北)


二层平面图(左上角为北)
四、湖北襄阳新中式别墅


建筑尺寸: 14.1m10.8m
建筑面积: 340.3
占地面积: 132.2
建筑结构:框架结构
参考成本: 48万元(按装修费用修订)
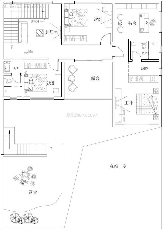
户型概况: 5室2厅3卫1厨2帽子1书房2露台1车库


设计重视整体隐私和采光,庭院和门巧妙地用月亮门隔断,提高室内隐私。 独立车库功能,库顶可以作为露台休闲空间,不浪费空间的使用度。进一步俯视图
二层平面图
转载请注明出自轩鼎别墅设计="://lemeizhai.com" target="_self">://www.lemeizhai.com