两座没有罗马圆柱的="://lemeizhai.com" target="_self">农村自建房屋既漂亮又精致,而且建造起来更容易
两栋没有罗马圆柱的农村自建房屋既漂亮又精致,使得建造更加容易。许多业主认为,如果他们在农村老家建一座别墅,就必须建一座有罗马圆柱的别墅,这已经够气派了。然而,有些地方对建筑面积有很高的要求,或者一些业主不喜欢使用罗马柱,更喜欢简单的公寓类型。下面两个没有罗马圆柱的乡村别墅非常精致漂亮,相对容易建造。
单元1: 7.512.4米,现代简约风格,外墙用文化石和白色真石漆装饰,平顶造型。

平面图:一楼是透明的室内,有一个房间,两个大厅,一个厨房和一个浴室;二楼设有三个房间,一个大厅,两个浴室和观景阳台;主卧室有衣帽间和私人浴室;三楼有两间卧室,室外有一个休闲露台。



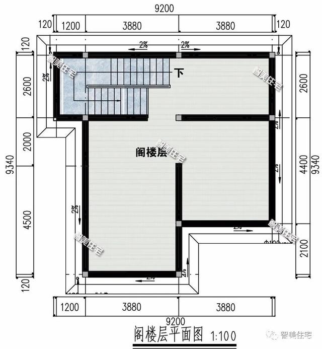
单元2: 9.2 16m,两个海湾的大门没有用罗马柱装饰,外墙用棕色小瓷砖和淡黄色真石漆装饰,屋顶用红色瓷砖装饰。

平面图:一楼是透明的室内,有一个房间,两个大厅,一个厨房和两个浴室,主卧室有一个私人浴室,有一个多功能厅和一个宽敞的客厅,二楼有四个房间,一个大厅和两个浴室,主卧室有一个主浴室,第二卧室有一个衣帽间,一个室外阳台,三楼有两个卧室和一个书房,还有一个大的和一个小的露台和阁楼空间。




这两栋别墅的宽度和大小都不是很大,没有罗马圆柱也很漂亮。
转载请注明出自轩鼎别墅设计="://lemeizhai.com" target="_self">://www.lemeizhai.com