一栋="://lemeizhai.com" target="_self">三层别墅洋房设计,风格多样,造价40万元,你会在农村建吗?

别墅有各种建筑风格。随着现代的发展,别墅的外观和造型已经打破了地域和国家的界限,在中国可以看到各国典型的别墅建筑风格。

今天,边肖带来的三层别墅让每个人都来看看它是什么风格。
别墅的立面由白色瓷砖制成,与绿灰色的坡顶相匹配。整栋别墅的亮点在于前后多窗设计,护栏也是玻璃材质,给人一种宁静和明亮的感觉。
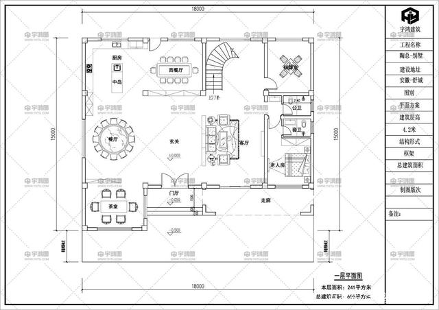
别墅宽18米,深15米,面积241平方米,是一座大型别墅。
让我们来看看别墅的内部布局设计:



在一楼,门厅的入口是门廊,然后是餐厅。厨房和西餐厅挨着,在门厅的左侧有一个茶室。右边是一个客厅,然后是一个有独立浴室的老人房间,后面是一个棋牌室。
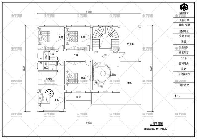
螺旋楼梯通向二楼,面向客厅。卧室都设计在左边。主卧室有一个衣帽间和一个独立的浴室。客厅外面有一个大露台,后面有一个日光室。
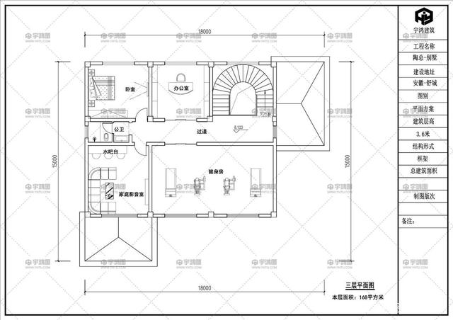
三楼有一个大型健身房,与办公室相对,家庭视频室也设计了一个水吧,卧室设计在左后方。
这样的三层别墅,灯光设计足够独特,再加上合理舒适的室内布局,你正在看文章,难道你不觉得兴奋吗?
转载请注明出自轩鼎别墅设计="://lemeizhai.com" target="_self">://www.lemeizhai.com