="://lemeizhai.com" target="_self">新中式三层别墅,简单大气,大露台,让生活舒适惬意!

"建筑继承文化,宇宏建立家庭."
你好,欢迎来到宇宏大厦。

简约大气的新中式,与现代的联姻。不要局限于传统,不要迷恋西方。回顾传统,取一两种精华,与其他风格混合。精致,就像一件理所当然的事,一点也没有不服从的感觉。这可能是东方的自然美和现代的浪漫之花。
画龙点睛是最重要的,传统的意义在于传统之美。新中式风格的优雅、稳定和古典美,实现了古色古香与现代风格的简单、优雅和自然的联系。生活的实用性和对传统文化的追求同时得到满足。
今天带给你的别墅是一个相对简单的新中式三层别墅。
别墅的正面装饰着白色和深棕色的石头般的油漆,以及带有实木框架和大铜门的窗户。整个别墅有很强的等级感。
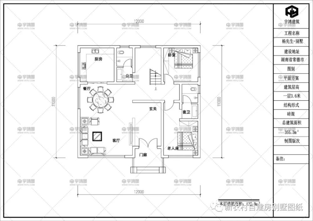
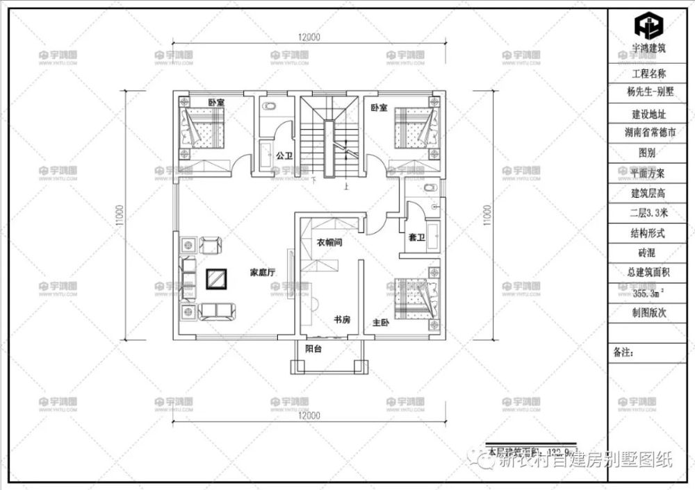
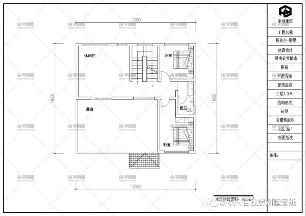
这座别墅宽12米,深11米,面积132.9平方米。别墅的结构形式是砖和混凝土。
附上平面设计布局图:



在一楼,门廊的入口是门廊。一直走到左边的客厅,挨着餐厅和厨房,然后到公共警卫和楼梯井。在最右边,有一个带独立警卫的老年房间和一间卧室。
从二楼的楼梯间向左转。还有两间卧室。主卧室有一个书房和一个衣帽间,以及一个独立的浴室。向右转也是一间卧室,但在它前面是一个家庭礼堂,适合一家人晚上一起看电视。
在三楼的右侧,仍然有两个布局相同的卧室。左边是一个大型的休闲大厅,在这里你可以做室内运动或者放一些健身器材。前面有一个大露台,适合日光浴、喝酒和聊天。
这样一个建在农村的三层中国别墅,也是一个独特的景观。
转载请注明出自轩鼎别墅设计="://lemeizhai.com" target="_self">://www.lemeizhai.com