2020年新兄弟="://lemeizhai.com" target="_self">独栋别墅设计图,祝福打造双斗

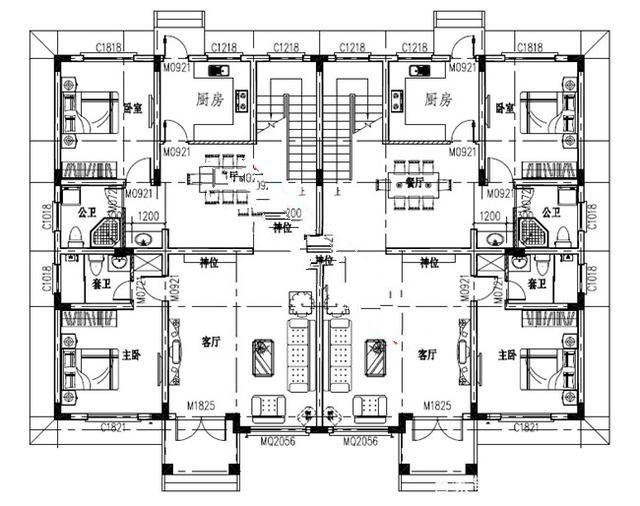
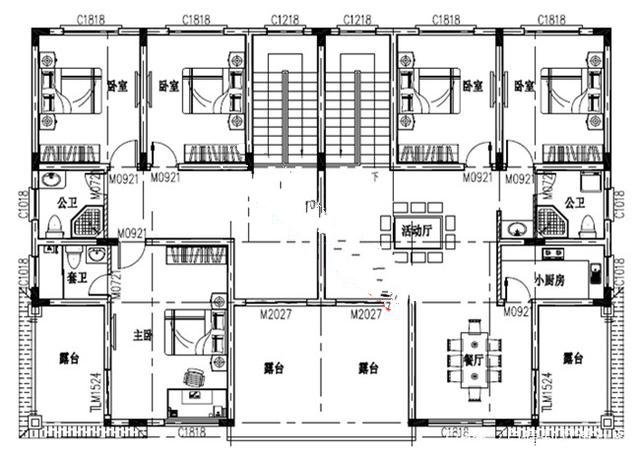
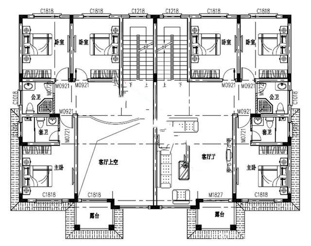
图纸简介:2018年兄弟单户别墅最新设计图纸,单户面积约130平方米,是典型的简约欧式风格,造型对称优雅。虽然外观相同,但二楼和三楼的布局不同。大落地窗的设计使房间有足够的自然通风和采光,室内照明效果好。


占地面积:19.0米* 15米,约260平方米,每户约130平方米;
建筑高度:三层;
建筑高度:12.91米(含屋顶);
设计功能:



底层:客厅、餐厅、厨房、卧室(带卫生间)、卧室和卫生间;
二楼:客厅上方,卧室(带卫生间),卧室2,卫生间;(客厅在另一户人家的客厅上方)
三楼:西门:主卧室(带浴室)2,露台;杜东:小厨房、餐厅、活动厅、卧室2、浴室;
转载请注明出自轩鼎别墅设计="://lemeizhai.com" target="_self">://www.lemeizhai.com