推荐="://lemeizhai.com" target="_self">农村三层别墅的设计方案,农村自建住宅应经济实用

农村自建房屋外观过于浮华,布局过于复杂。农村要注重经济性、实用性、经典性、美观性、简单实用的布局。边肖推荐的三层别墅设计正好满足了农村人的需求。
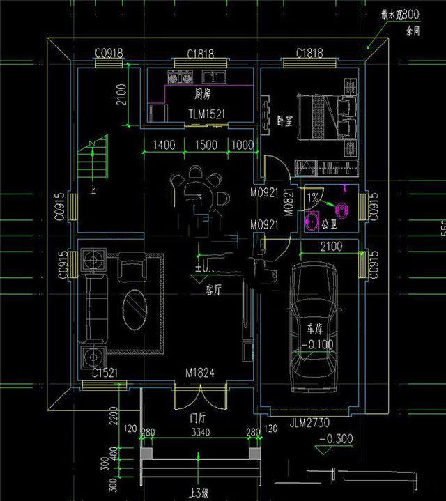
面积:9.90米* 11.00米,约110平方米;
建筑高度:三层;
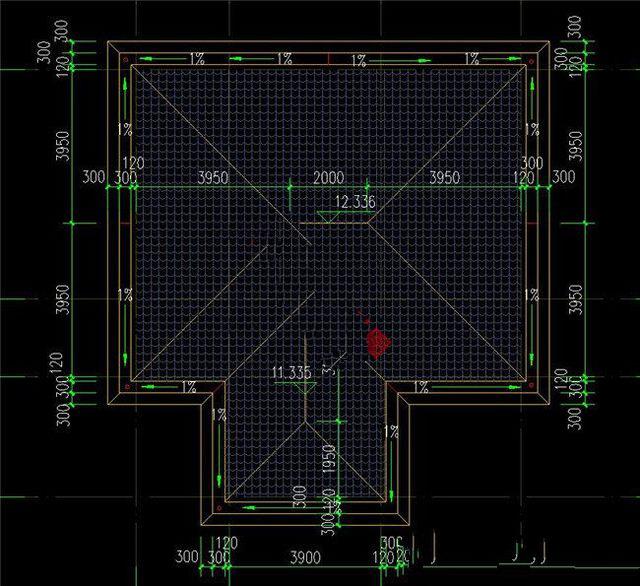
建筑高度:12.34米(含屋顶);
设计功能:




底层:客厅、餐厅、厨房、卧室、浴室、储藏室(楼梯下)和车库;
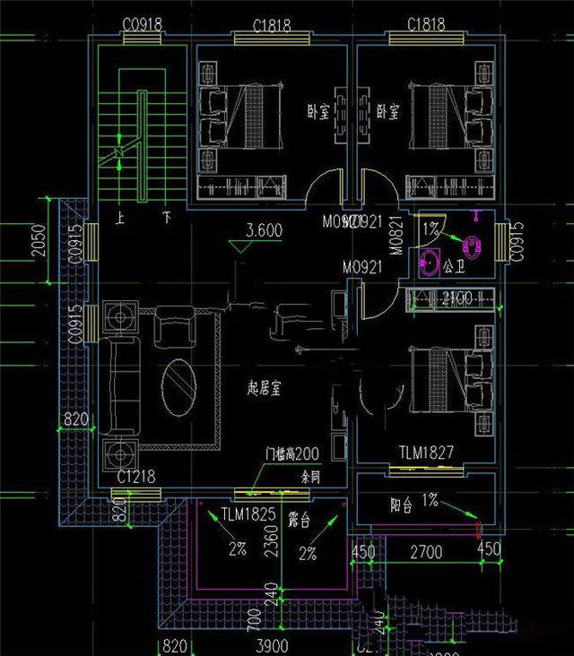
二楼:客厅,x3卧室,浴室和露台;
三楼:主卧室(带衣帽间和露台)、x2卧室、浴室和大露台(屋顶花园);


转载请注明出自轩鼎别墅设计="://lemeizhai.com" target="_self">://www.lemeizhai.com