="://lemeizhai.com" target="_self">三层的欧式别墅,外面豪华,里面宽敞,是富人居住的地方。

整个建筑属于欧式别墅,主体结构为砖混结构。整体的颜色匹配带来了彼此最好的一面,这是典型的混搭结构。它看起来很大气。三层的欧洲别墅,外面豪华,里面宽敞,是富人居住的地方。
从上到下看,别墅占地面积大,有足够的空间进行私人活动。别墅的屋顶是用砖和瓦做成的,低调而朴素。这是现代社会常见的搭配方式。


虽然别墅周围只有三层,但别墅的宽度非常合适,而且别墅的左右两侧都有树木,这不仅使别墅的整体色彩显得丰富,也让两边的树木可以品茶聊天。欧式别墅,您想要的休闲娱乐场所,每一层的设计都能让您满意。


从别墅外面看,别墅的整体采光非常好,周围还安装了一些吊床和秋千。同时,一些别墅属于公园风格,这是非常吸引老人和儿童。
虽然别墅看起来很豪华,但并没有打扰我们的休闲和优雅。别墅外面的面积很大,所以种花种菜没有问题,也可以使整个别墅清新雅致。
别墅的大门是木制的,有点像古代的大门。外表看上去复古,内心却很现代。它内外搭配得特别好。


从医院外面看,有一个大的开放式车库,外面有一个小门,专门用来进出车库,所以经常用车更方便。

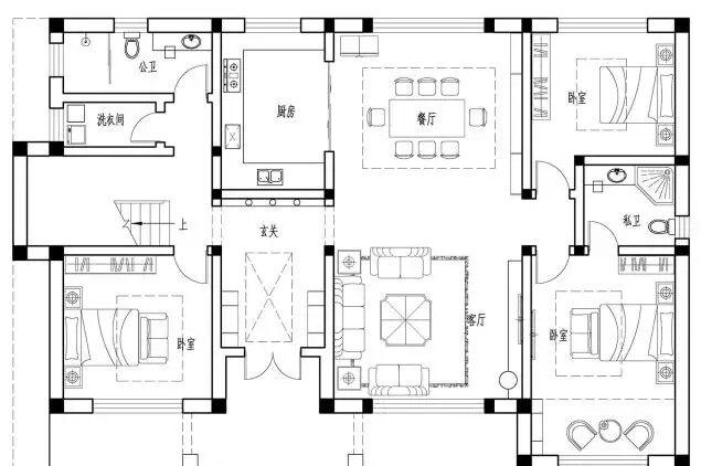
别墅有三层。一楼主要是厨房和餐厅。大多数饭菜都在一楼,非常卫生。此外,还有三个大卧室,适合那些不想上楼或不想在夏天居住的人。



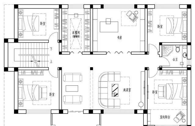
与一楼相比,二楼有更多的休息场所。有四间大卧室,书房是别墅的必备房间。在现代,大多数人更喜欢看书,所以在设计这样的别墅时,没有必要担心没有地方看书。
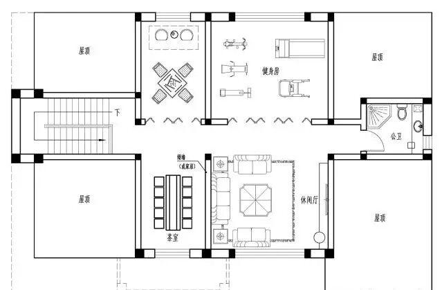
三楼是别墅的顶层,所以会有更多的休闲娱乐场所。这里有独立的健身房和大型休闲大厅,满足您的期望,是品茶的好地方。
转载请注明出自轩鼎别墅设计="://lemeizhai.com" target="_self">://www.lemeizhai.com