="://lemeizhai.com" target="_self">中式别墅设计,东方魅力之美,一见钟情

中国的设计方式从来没有至高无上。“大声音和大象形状”的美,“一排排和精细雕刻”的繁华美和中国设计文化似乎从未受到限制。
在这种情况下,基于庭院式建筑的中式自建别墅在外形上也很相似,古道也很简单。
合肥自建别墅布局设计


本案例中的项目位于四川,房主考虑建造一座古色古香的四合院式的中国别墅,以经营一个寄宿家庭。
宅基地的周围环境相对简单,西边是邻居的房子,南边是土沟,北边是空地,东边是山坡。
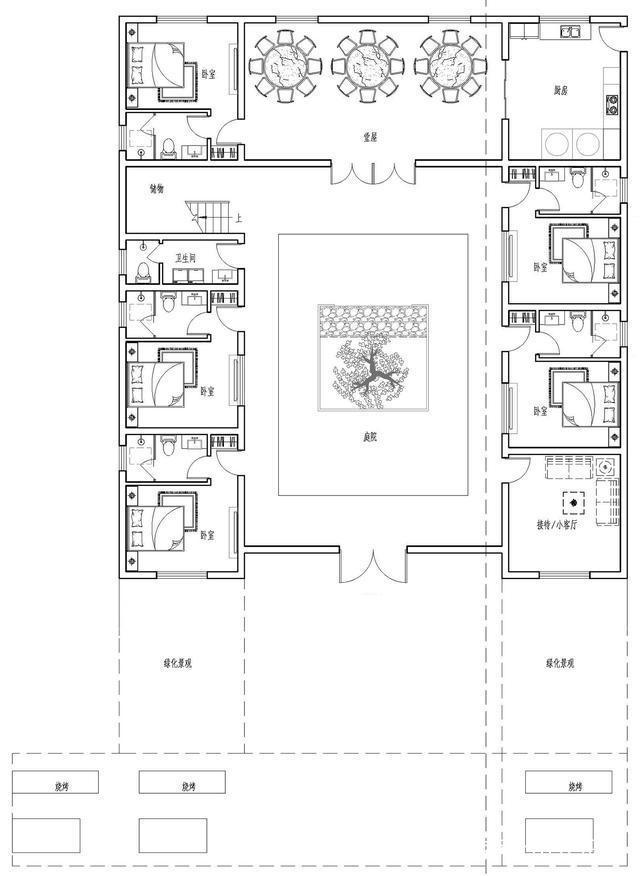
庭院式自建别墅首层平面图


由于该建筑最终将被用作寄宿家庭,在平面设计中计划了九个独立空间,可用于寄宿家庭经营以及招待亲戚和朋友。
在平面上,采用庭院的建筑形式,主房间是正宗的主房间,厨房与主房间相邻。它可以容纳很多人同时吃饭。在平面设计中,每个卧室都配有独立的浴室,楼梯间配有公共卫生间。
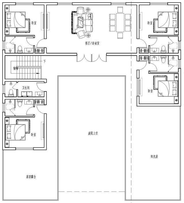
自建庭院别墅二层平面图


在二楼的平面设计上,主房间设有活动室和客厅,较大的空间让居住者有良好的居住体验。值得一提的是,设计师在西南角的露台上提供了户外活动。
自建庭院别墅鸟瞰图
整体建筑风格以新中式风格为基础。立面以白色真石漆为主,整体风格通过建筑层面上的仿青砖面砖而得到丰富。屋顶是传统的坡屋顶,色调搭配,使别墅富有古朴。
自建庭院风格,高度鸟瞰


院门的设计非常宽阔,木门上装有抱鼓石,两侧增加了中式镂空设计,使得整个院门看起来气势宏伟。而庭院外,有很多景观设计,假山和流水,风景如画。
庭院式自建别墅南侧效果图

由于庭院面积小,庭院中央有一个水池和假山,锦鲤在水池中漫步,充满了自然美。假山为整个别墅增添了一道风景线。
转载请注明出自轩鼎别墅设计="://lemeizhai.com" target="_self">://www.lemeizhai.com