别墅设计:="://lemeizhai.com" target="_self">乡村新中式别墅设计和欧式别墅,不要太大或太小,适合家庭一起居住
新中式乡村别墅越来越受到大家的欢迎,它以高贵的外观、高端的品位和内涵,结合了传统和现代建筑风格的优势,成为一道亮丽的风景线。新的中国和欧洲农村别墅不是大或小,功能齐全,适合家庭居住在一起。
基本建筑信息:新中国两层别墅
海湾:11.7米
深度:10m
建筑面积:210平方米
建筑结构:砖混结构
空白成本:25万
一层平面分布图



在一楼,有主房间,老人房间,客厅,厨房,餐厅和储藏室。客厅相互连接,使气氛透明。老人房与浴室相邻,房间的窗户也很大,方便老人使用。
两层平面分布图
二楼分布有家庭房、三间卧室、书房、露台和阳台。有三间卧室,足够了,这有利于举行农村习俗,提供亲友过夜的需要,大露台非常方便干燥和休闲。
主要信息:欧洲两层别墅
海湾:14.4米
深度:24.8米
建筑面积:482平方米
建筑结构:框架结构
空白成本:60万
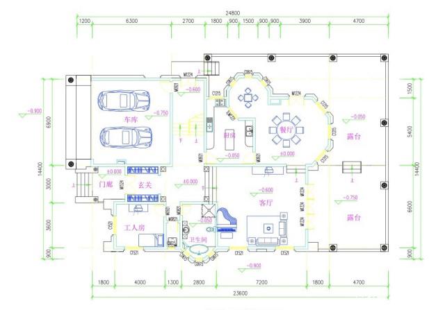
一层平面分布图
车库、门廊、工人房、客厅、厨房、餐厅和大露台分布在一楼。工人房可布置为客房,客厅采用下沉式设计,时尚舒适。八角餐厅与厨房相连,气氛豪华。客厅外的大露台使房间充满采光,可以休闲欣赏风景。
两层平面分布图



在二楼,有一个中央大厅,3间卧室,书房,衣帽间和阳台。每间卧室都有浴室和衣帽间,主卧室套房还包括一个八角形书房,空间宽敞,居住性能舒适,给主人带来完美的生活体验。
转载请注明出自轩鼎别墅设计="://lemeizhai.com" target="_self">://www.lemeizhai.com