这些在="://lemeizhai.com" target="_self">农村地区自建的三层别墅各有优点。网友:最后一个是最喜欢的!
网络时代给每个人带来了很多便利,也给在农村地区建造自己房子的朋友带来了很多便利。网上的很多画真的很丰富多彩,让人眼花缭乱,但是网民很难选择。本期我将与大家分享三套农村自建三层别墅,每套都有自己独特的风格。但是读完之后,网友们都说第三个是最喜欢的。让我们看看你喜欢哪一个。
第一节:南方农村大型普通三层建筑
海湾:19.8米
深度:15.45米
面积:269.7
总建筑面积:551.8
建筑高度:10.05米
楼层数:三层
结构形式:砖混
成本:约45万元
正面的人类视觉效果图

该方案是一个占地270平方米的三层别墅设计图,占地面积很大。一楼配有多个车库和带土制炉灶的独立厨房。设计理念符合农村人的生活习惯。外墙正面用深绿色仿砖墙和淡黄色真石漆装饰,然后用文化石门装饰。整体搭配和谐醒目,造价贴近群众,施工工艺简单,更适合农村建设。
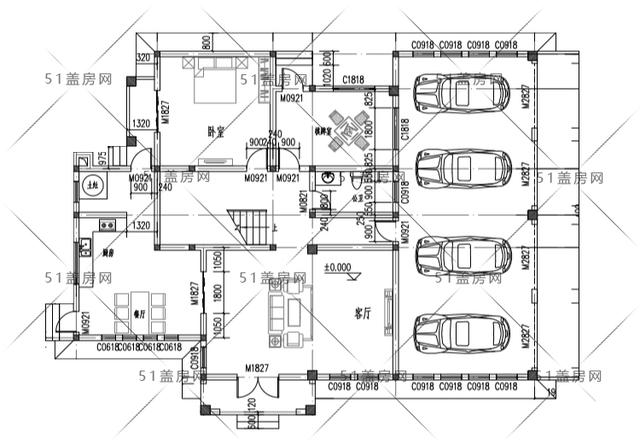
建筑的平面图



客厅方而宽敞,用来招待亲朋好友的来访空间。左边有餐厅和西式厨房,右边的门可以直接通向厨房区,厨房区的北角设计了一个带烟囱的土炉厨房,非常适合农村的生活习惯。土炉厨房有一个独立的入口和出口。北侧有一间带阳台的卧室,可以作为老年人的房子,东侧有一排带四个停车位的车库,即使车不多,也可以作为仓库使用。此外,还有一个小棋牌室,在那里和邻居打麻将很好,并且有一个单独的入口和出口,所以你不需要进入主棋牌室。
二楼平面图
二楼是一个有三间卧室的客厅,南面有一个带阳台的小客厅,可以用来进行家庭娱乐。东西两侧都有一个很大的露台,尤其是东侧,可以作为家庭的主要户外活动空间,西侧非常适合晾晒。
三层计划
这一层是主人的生活空间,有两间卧室和一间书房,还有一间在南面带阳台的客厅。
在这幅图中,家园有很大的面积。如果面积不够,车库位置可以忽略并稍加修改。
第二节:现代简约时尚的三层别墅地图
宽度:9.76米
深度:11.76米
建筑面积:126.4
总建筑面积:343.3
别墅楼层:三层
高度:10.65米
主体结构:砖混结构
屋顶形式:平屋顶
风格:现代
正面外观效果图

外观采用现代风格,简约时尚的造型符合现代人的审美标准。立面由深灰色和浅灰色墙砖制成,带有文化石门头,立面的各层以材料和颜色区分。阳台栏杆和女儿墙都是玻璃做的,这让整个别墅看起来更时尚,整体感觉也不错。建筑的平面图



入口玄关设在一楼,是室外和室内的多余空间,乘凉看风很舒服。室内空间南北贯通,交通便捷,通风采光良好。客厅朝南,宽敞大气。在西面的北面和南面有一间卧室,可以用作老年房间或客房。公众在两间卧室的门口使用非常方便。厨房和餐厅在大楼的北面相邻。楼梯下面设计了一个储藏室,充分利用了死空间。
二楼平面图
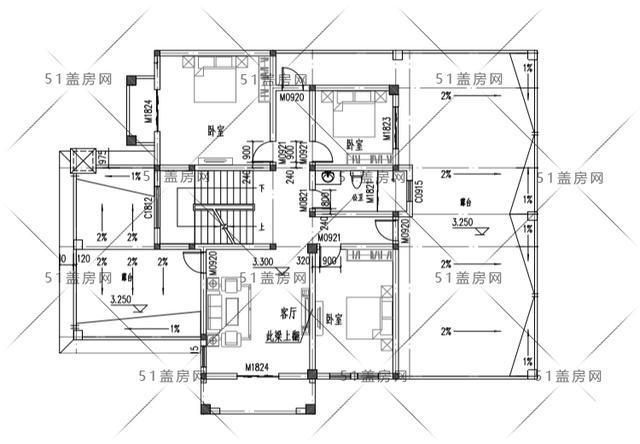
作为业主家庭的居住空间,该楼层设计有一个带内部保安的主卧室和两个第二卧室,主卧室朝南,公共保安位于两个第二卧室之间,非常合理。二楼客厅主要用于家庭的私人聚会和娱乐场所,可与南阳台和露台相连,温馨舒适。
三层平面图
该层主功能室的活动空间设计为两间卧室,可供亲友临时居住。此外,还设置了一个开放式健身房,可根据业主的要求将其改为其他功能。朝南的房间是一个大型的室外露台,在出口处有一个亭子,这不仅丰富了别墅的主要形状,也方便了室外凉爽的观赏。露台便于家庭户外娱乐和晾晒。
第三段:简在欧洲的三层别墅设计图
宽度:11.6米
深度:10.8米
占地面积:133
总建筑面积:335.8
层数:地上二层半
高度:檐口11.5米至屋顶12.75米
结构:框架结构
风格:简欧
费用:28万~ 32万元
正面外观效果图


这组图纸是一个12x11米的农村两层半自建房屋设计。整体设计采用简单的欧洲风格。淡黄色的瓷砖、土黄色的罗马方柱、当地白色的门窗罩和栏杆构成了整个别墅的立面。红色坡屋顶,色彩美丽和谐。门卫室简单大气,增强了入场仪式感。
背面外观渲染



该方案注重自建房屋的开放性,背面二、三层有开放式露台。这种设计方法不仅可以增加照明面积,而且有利于室内的通风效果,还可以提供室外活动空间。东南角的一根罗马圆柱通向三楼,与整体风格一致,起到了烟囱的作用。有一扇后门便于进出。
一楼公寓平面图
进入房间后,主房间是高级的,主卧室在左边,客厅在右边。一楼的主卧室可以供老年人使用,方便他们的日常生活。中厅和餐厅从北到南都是透明的,大大提高了室内的通风性能。厨房与餐厅相连,后门留在餐厅和厨房的交界处。在北边还有一间客房,它利用楼梯下的区域作为公共警卫。此外,一楼还有一个储藏室。
两层公寓布局
作为主要的居住空间,二楼设计有三间卧室,其中西南侧的主卧室很宽敞,有一个私人浴室。中间是一个家庭使用的小客厅,温暖舒适。北侧的一个小书房可作为业主的日常办公用房,东北角的一个开放式小露台确保每层都有户外空间,随时可以看到。三层公寓计划
除了一间主卧室和一间第二卧室,这层楼的大部分房间都是室外的,南北两侧都有一个大露台。两个露台可以区分功能,一个用于通风,另一个可以在屋顶上创建一个绿色花园,作为家庭的主要户外娱乐空间。
除了外观和形状的不同,这三幅画在公寓类型上也有很大的不同。每个家庭都有自己的需求和特殊情况,那么这些模式适合你吗?
转载请注明出自轩鼎别墅设计="://lemeizhai.com" target="_self">://www.lemeizhai.com