这座="://lemeizhai.com" target="_self">农村的两层别墅真的是脚踏实地,简单、美观、实用。如果你建造它,你的父母会喜欢的

许多准备在农村建房的朋友都在努力盖几层楼。事实上,在这之前应该考虑几个问题,不是越高越好。首先,你的土地面积有多大,其次,家庭中永久居民的数量,第三,个人的经济承受能力。对于大多数家庭来说,两层楼的房子是最合适的。一层平房虽然便宜,但不可避免地有阴暗潮湿的缺点,普通三代家庭的居住空间也有些局促。三楼的建筑成本很高。如果不是一个大家庭,必然会有很多空间的房间,每天打扫卫生的工作量会很大。在本期节目中,边肖介绍了一个120平方米的住宅的接地设计,该住宅占地面积适中。这里不仅有5间卧室,还有一间书房和一个大露台。主要费用可控制在25万英镑以内。让我们一起来看看。


该两层农村自建住宅设计面宽10.8米,深11.7米,面积126.36平方米,总建筑面积253.44平方米。地面为两层砖混结构,高8.85米。外观设计简单大气,没有太多花哨的装饰。立面简单明亮,只有土黄色的真石漆和纯白色的腰围和栏杆。加上红色的坡屋顶,整个是和谐和引人注目的。在某种程度上,它不仅节约了建设成本,而且给人一种强烈的设计感。


一楼有一个门廊,它与入口门楼是一体的。老年人通常在这里晒太阳喝茶,和三五个朋友打牌很愉快。门卫室直接通向二楼,并为二楼提供阳台空间,使氛围实用。
总的来说,它保持了和前面一样简单的风格,窗户的面积很大,保证了房间足够的照明和通风。后门留在后面,这使得日常出入更加方便,同时增加了生活的趣味性。
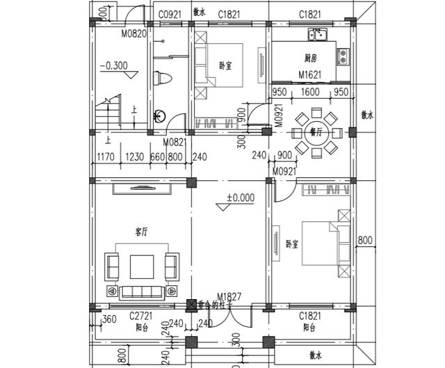
建筑的平面图
从门楼南面的正门进入,是一个大厅,客厅在同一个大厅的左侧。这些空间相互交流,进入房间非常明亮。一楼有两间卧室,朝南的卧室可以作为老年房间。餐厅毗邻厨房,在大楼的东北侧。公共卫生警卫站在楼梯井旁边,干湿分开。后门位于楼梯间,直接进入二楼非常方便。
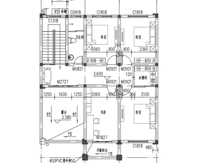
二楼平面图
二楼有三间卧室,朝南的主卧室有一间步入式衣帽间。所有房间都有良好的照明。中间有一个带开放式阳台的书房,是主人日常工作和收藏的地方。在大楼的西南角有一个大露台,从小客厅出来。这里阳光充足,所以你可以种一些绿色的花来营造一个绿色的屋顶花园,这样也很方便晾晒。
这座两层的别墅在绘画上既经济又实用,外形美观,内部布局合理。虽然它占地面积很小,但它也有5间卧室,足够一个三代人的家庭居住,一间书房可以作为一个灵活的空间,即使客人来家里。主要费用不到25万元,不包括室内外装修费用,这对于农村住房建设来说是非常划算的。
转载请注明出自轩鼎别墅设计="://lemeizhai.com" target="_self">://www.lemeizhai.com