350平方米的="://lemeizhai.com" target="_self">农村别墅设计表明,40万元的中式装修效果如何?
如何更好地设计350平方米的房子?这套案例来自中工的园林。这座350平方米的房子被设计成别墅。装修费用只有40万,装修风格是中式的。让我们看看他是如何设计的。
业主要求:业主40-45岁,现正常生活三代。业主有一线城市生活经验和海外留学经历,要求高品味。三楼预订了一间套房,二楼预订了两间套房。整栋房子都是家庭办公室和智能家居。他不太喜欢古典风格,接受中式或欧式风格,工作熟练,非常认同设计理念:“生活方式决定室内设计”清新、美丽、优雅。设计描述:本案例旨在创造一个现代、青春、活力、激情与中国传统生活的完美碰撞。首层主要为外部,玄关分为室内和室外空间,可以满足业主对玄关四季的需求,即可以短时间接待游客,也可以分为静态和动态两个区域。后期配套园林的设计和规划是收尾工作,是人与自然的和谐,是内外的联系。厨房的设计极大地提高了空间的利用率,西餐区成为了一个过度的空间,既有西方大都市简单的生活习惯,又有中国人对厨房的理解和感知。客店的氛围塑造是结合业主的生活质量和细节来刻画细节。楼梯的描绘符合现代都市人对复杂社会现状的简单而最直观的体验.我们的团队很年轻,我们的团队也充满激情和活力,这可以帮助更多的人实现梦想,你还在等什么?下一个是你.

客厅在家庭空间中占有最大的面积,也是家庭住宅的核心区域,是最能体现装修风格的区域。客厅的特点是面积大,空间开阔。定义客厅风格非常重要。如果连客厅都不能表达家庭装修风格,那么这样的家庭装修肯定会失败。


作为游客的主要区域,客厅是一个聪明的家,清新,美丽和优雅。
首层主要为外部,玄关分为室内和室外空间,可以满足业主对玄关四季的需求,即可以短时间接待游客,也可以分为静态和动态两个区域。后期配套园林的设计和规划是收尾工作,是人与自然的和谐,是内外的联系。


餐厅的装修讲究美观,同时实用,最重要的是,适合餐厅的氛围。装饰时,一些桌布和窗帘是不错的选择。另外,设计师会选择一些较薄的化纤材料,这些材料容易清洗,价格也非常实惠。
客店的氛围塑造是结合业主的生活质量和细节来刻画细节。
厨房的设计极大地提高了空间的利用率,西餐区成为了一个过度的空间,既有西方大都市简单的生活习惯,又有中国人对厨房的理解和感知。学习设计应注意合理布局。书房没有卧室和厨房那么实用。如前所述,书房可以是工作区,也可以是休闲区,所以在设计书房时,首先要合理规划和安排空间。


生活方式决定室内设计。“清新、美丽、优雅。
书房的设计简单直观,所有可能造成视觉干扰的装饰都被去除了。这张古色古香的书桌让人感到宁静
在玄关装饰的过程中,我们应该充分考虑实用性的特点。但是你不能承受太多的重量,也不要增加太多挂衣服的空间,这样会影响美观,容易造成累赘。
楼梯的描绘符合现代都市人对复杂社会现状的简单而最直观的体验
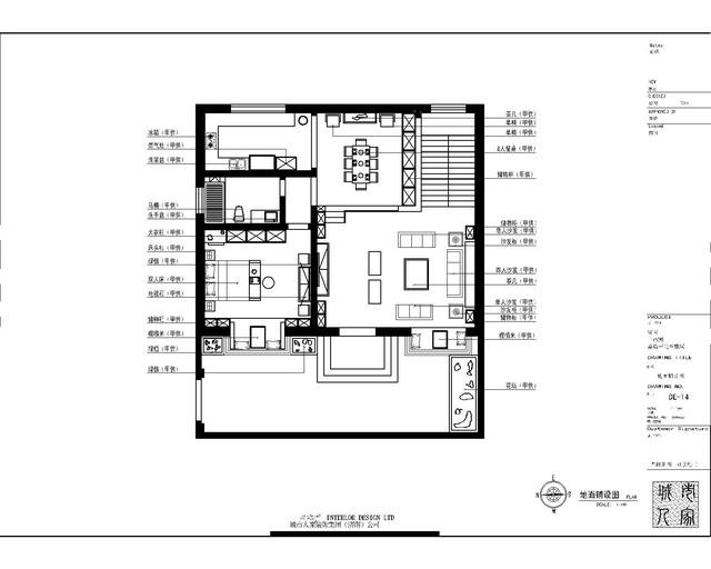
以下是位于中工山水花园小区的这座350平米别墅的平面图。
新中式自建别墅一层布局设计方案

每个人对装饰都有自己的看法。在装修的时候,他们总是考虑自己需要注意什么,生怕装修会走弯路。如果有40万元的装修预算,350平米的别墅该怎么装修?这个装修案例的主人用他自己的中式装修效果图做出了最好的回答。如果你也喜欢,请转发评论。
转载请注明出自轩鼎别墅设计="://lemeizhai.com" target="_self">://www.lemeizhai.com