当欧式别墅遇到平坦的屋顶时,这也可能是农村最美的二层小别墅!
我们形象中的欧式建筑都像是其尖顶的屋顶、大的罗马柱和古堡式建筑,自从欧式风格流入中国以来,许多欧式别墅似乎都失去了原来的姿态,但更符合中国人的生活习惯和审美。 今天介绍农村最美的二层别墅。 具有欧式风格的典型特征,有很多现代化和本地化的味道。 多么平的屋顶啊。 看看平顶的欧式别墅为什么这么漂亮。
正面效应图

首先,让我们来看看这个别墅的具体参数。 建筑开间12.5m深12.3m,占地面积约150平方米。 二层别墅,采用条纹状的冶炼瓦构造,到二楼屋顶的高度为6.9米,因为有到达二楼屋顶的台阶,到台阶屋顶的总高度为9.6米。
工程被定位为欧式风格,在罗马的柱子、欧洲的围栏、窗户的形状等也可以看到典型的欧式风格的特征,平顶和阳台的玻璃的简单遮阳具有现代风的味道。 外观设计大气华丽,门庭宽敞,增强了入户感,同时为二楼提供了户外阳台。 外墙以黄褐色、橘黄色、暖黄色形成了温暖的视觉感,经典的三段式外墙建设修订搭配了顶楼欧式风格,整个建筑欧式韵味十足,不失时尚感,堪称农村最美的二层别墅。
鸟瞰效应图

屋顶采用平顶形式,可以通过楼梯到达屋顶,大幅度增加建筑可利用空间,为业主提供大面积的户外活动区域,同时还可以晒衣服和农作物,这也是平顶对斜顶的优势。
后面的小郭

别墅后面也留有后门,出入方便,突出的小阳台和玻璃的顶部在别墅后面加上明亮的颜色的同时,也增加了室内的开放性能。
单层平面图

通过大门进入后进入客厅。 这是主人接待客人的地方,很宽敞开朗,不认为会有更多的人拥挤。 餐厅厨房相对封闭,经常避免油烟进入室内空间。 南方的设计有长者的房间,老人住在一楼也可以省去攀登的麻烦和危险,房间里内置有独卫,为老人的生活起居提供了最大的便利。 西北角的棋牌室也可以根据业主的需要灵活运用。
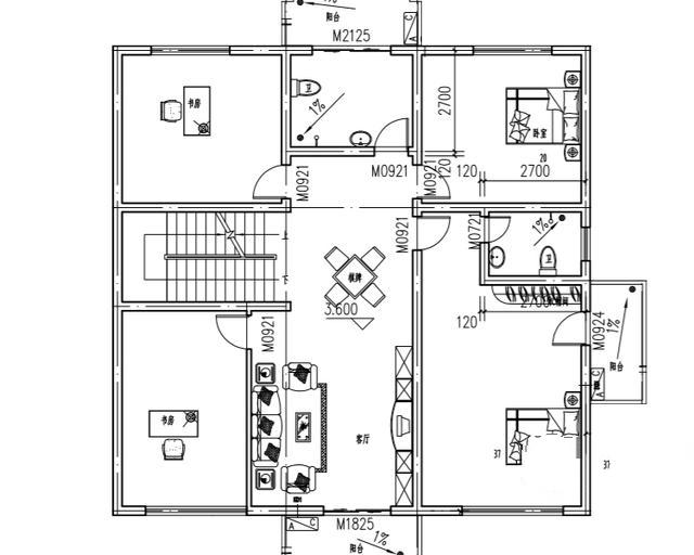
双层平面图

二楼主要是一家生活起居空间,共有四个房间,主要睡在东南侧,两面采光通风极好,内建明卫,东侧有望风小的阳台。 其他3个房间可以根据业主的需要灵活运用,客厅位于中央,这里是自己家的私人休闲场所。 北侧公卫面积大,位置方便。本套农村自制二层平顶简欧别墅修订图,外观漂亮,内部户型修订也极合理实用,所有明厨明卫,采光通风达到最佳状态,二层三面阳台,开放性极佳。 图纸齐全,包括建筑结构和水电图一套,拿到就可以直接用于施工,不会有任何障碍或担心。
转载请注明出自轩鼎别墅设计="://lemeizhai.com" target="_self">://www.lemeizhai.com