原来小户型的欧式别墅也是如此大气,占地面积126平方米有8间卧室和书房!
说起欧式风格,大家并非陌生,可以说已经进入了千家万户。 近年来,在我国农村的自建房领域,欧式小洋楼也同样比较。 欧式别墅,但发现效果相当不同。 欧式以高贵、奢侈、大气着称,但适用于农村的自营住宅必须简化灵活性。 结果住宅性建筑通常体积小,大量使用沉重的欧式构件和罗马柱会失去房屋本来的平衡,不仅会增加建设成本,而且效果也不好。 今天小编向您展示占地面积仅126平方米的欧式三楼别墅。 欧式的味道十分温暖舒适。 一起看看吧。
正面效应图

从这栋别墅的具体参数来看,建筑面宽12.7米,建筑深11.3米,占地面积约126平方米,建筑面积约369平方米。 建筑高11.85米,地面三层框架结构,本体成本在32~38万元之间。
鸟瞰效应图

这座欧式三层别墅占地仅126平方米,确实显得很雅致。 外观采用古典欧式风格,主体外观搭配文化石和真石漆,两种不同材质的交错搭配十分协调,同时使别墅具有厚重感。 二楼和三楼都有露台,坡屋顶设计有两个虎窗,丰富了整体造型,为阁楼提供采光和通风。 室内户型设置修订更加紧凑合理,共有8个卧室和一个书房,足以供一个大家庭居住。
反面效应图

别墅的后立面和侧立面看起来相对简洁,但整体上还是保持着正面的风格。 采光面积大,通风也很好。
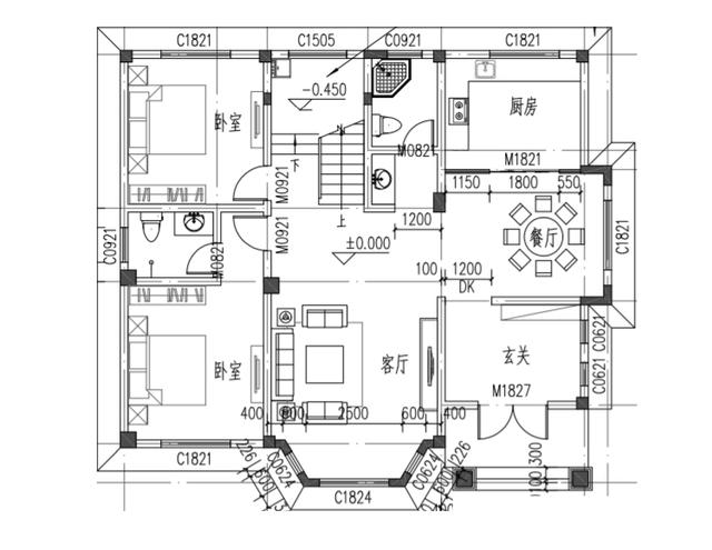
单层平面图

正南门入室经过大门,大门进入的是餐厅,与厨房相邻。 1楼朝南的中间位置有中空式的大客厅,窗户修订为凸式,使室内空间具有膨胀感,给予更明亮的大气。 一共有两间卧室,朝南的老人房宽敞明亮,有独卫,老人居住很舒适,朝北的卧室可以作为客房或佣兵之间。
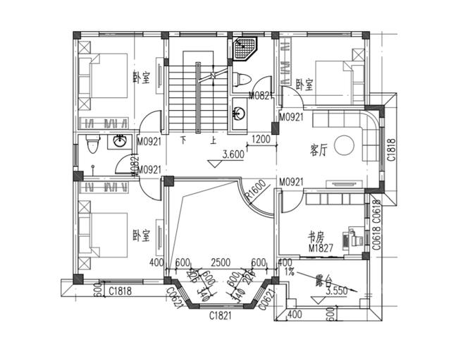
双层平面图

二楼是家庭居住的空间,有三个卧室和一个书房,书房的南向也有小摊,很舒服。 东边正中间有起居室,家人可以休闲集合。
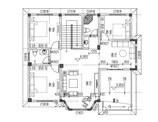
三层平面图

本楼除了有三间卧室的设计外,还有更多的休闲娱乐区,中间客厅面积大,是自家的主要活动区,同时在建筑的东南角有很大的摊位,为家庭提供了广阔的户外活动空间。
转载请注明出自轩鼎别墅设计="://lemeizhai.com" target="_self">://www.lemeizhai.com