实例展示:一个兄弟一起怎么盖房子,一定要看双拼别墅设计。
一家兄弟有足够大的宅基地怎么建房子,又在考虑分开各自的房子,那么,你就out了。 现在兄弟组成别墅,不仅形状漂亮,泄露霸气,而且容易亲近,容易照顾家里的老人。 今天向大家介绍来自安徽六安王总的双拼简欧风别墅的实例别墅快来睁开眼睛吧!
01
建筑参数的成本
开间:二十米
深度: 12米
占地面积: 240平方米
建筑面积: 650平方米
建筑结构:砖混结构
估计成本: 80万
注:不同地区的材料成本、地基差异、人工费、运输成本等因素的不同,本体成本也不同。
02
外观效果图

我们的设计师在前期经过充分的考察和深入的探索设置修订,高质量地完成了这个双重别墅的效果图和户型图设置修订。 最终效果图的确定也表明进入了正式的施工图阶段。

威武霸气的三层双拼写,面对的话有临场感,给人接近大气的感觉。 双层别墅实际上是房屋建筑的左右对称结构,采用左右各开户结构建设修订,满足了两家各自的生活空间,但同时不失两家的亲密交流,减少了距离感。





别墅的外观设计采用简欧风格,乍一看有新中国式的味道,看上去很漂亮,清爽,双拼写结构,左右两侧的内部设计基本相同,我们谈户型图时只需一侧即可。
03
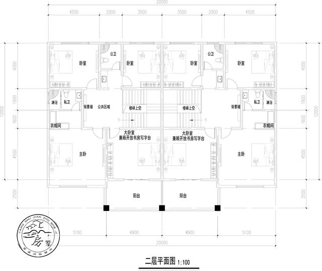
内部结构图

别墅的一楼有堂堂、客厅、餐厅、厨房、储藏室、卧室、厕所、洗衣房。
堂屋和客厅的功能没有太大差别,家人平时在堂屋休息等,客厅的配置内容丰富,用于招待客人,环境优雅,空间宽广。 也有一楼的基本丝带。 卧室可以是老人的房间。 我想得非常周到,以免家里的老人下楼梯很麻烦。
别墅的二楼有卧室、厕所、书房、阳台四个。

主卧有独卫和衣帽间,提高了主卧相应的班级功能。 大卧室兼有开放书房的功能,阳台入口也有大卧室、开放书房的设计,不仅在环境上有独特的优势,而且随时可以供休息,阳台可以晒相应的洗涤物。

别墅的3楼设有3间卧室、书房、厕所、露台、阳光室。
房子人口更多,卧室绝对充足,更多才多艺的卧室可以作为客房使用也可以紧急使用。 孩子们也有自己独立的空间,有利于孩子们身心健康的成长。 阳光房直通露台,冬天可以在阳光房沐浴阳光,夏秋夜可以在露台赏月聚餐,三楼地势高,可以日常观光。
转载请注明出自轩鼎别墅设计="://lemeizhai.com" target="_self">://www.lemeizhai.com