农村双层别墅设计,精巧的新中式设计,家庭生活幸福

传统的中国式建筑集中了古代中国几千年、无数代前辈的智慧,是许多人国家的信仰。 传统建筑对于现在的生活或多或少都适应不了。 从而产生新中国式的风格设计,结合对欧式生活的简略理念,融合传统中国式的审美,非常适合当今人的生活观念。
今天,房间宿舍中心给大家带来了非常美丽的新中式别墅的盒子
家庭基本信息:
建筑面积: 316
建筑尺寸: 14m18m
建筑结构:砖混结构
户型概况: 5室3厅4卫1厨1储藏物1书房1车库
土建成本: 30万

宅基地的基本状况,南北两侧是道路,东西两侧有邻居,东西两侧不能开窗的问题需要修订。
房屋外墙装饰以白墙灰瓦简洁材料为主,整体外观更加雅致,也是继续传统建筑的黑白简单风格。 黑白的组合继承了太极的黑白两极。 空间过渡的木质装饰可以为外观添加颜色,同时也可以明确空间的边界。



庭院的入籍设计偏离了主屋的大门,避免了和主屋的冲突。 上轩口的形状使空间更加突出,客人的入户仪式感也更大了。
车库的窗户与建筑物正面敞开的窗户相比,长落差感使整个正面显得更加精神。 车库设计在村子的道路旁边,出入车很方便,车库的大门用翠绿色的竹墙和黑门带来厚重感。



庭院的效果图是在墙壁下面的位置种植插花和翠竹来装饰,有台阶的配置使空间更加丰富。
一楼最上面的露天观景台可以看到整个院子的景色。
单层平面图

一楼入口的大面积大门和客厅形成南北通透的结构,使空间更加明亮。 一楼采用三种布局,开放空间使整个内部空间更加大气。
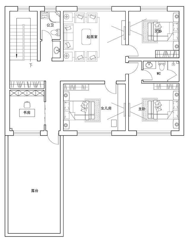
双层平面图

主要卧铺采用配套形式,女儿的房间与书房相邻。
在农村盖这样的别墅,当然不太高兴。
转载请注明出自轩鼎别墅设计="://lemeizhai.com" target="_self">://www.lemeizhai.com