把传统文化和现代时尚的农村别墅结合起来,优雅大方,决不落后
建筑以新中式风格,采用传统结合现代的设修手法,保留传统要素中的坡屋顶形式,同时结合现代要素中的大窗玻璃,造型时尚不失传统,大窗玻璃和对流窗营造室内采光通风良好、舒适明亮的生活环境,在农村建设,经久不衰。

建筑基本信息:
开间: 13.5米
深度: 11米
建筑面积: 330平方米
存货成本: 35万
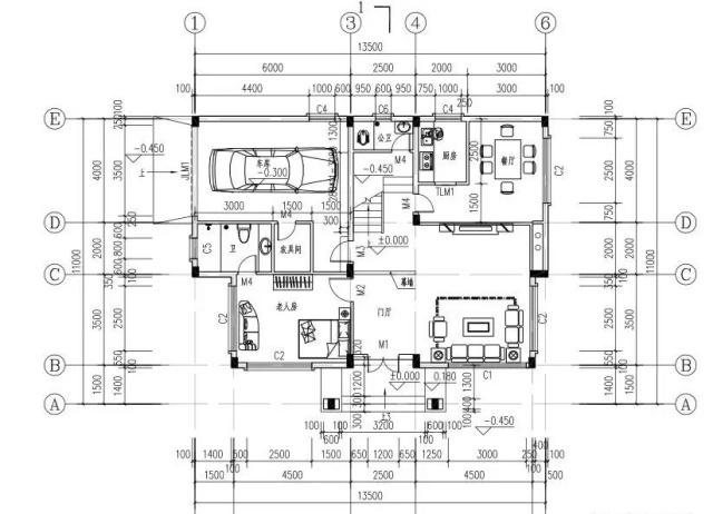
一层平面分布图

一楼大厅、农具之间都非常适合农村机能设置修订,使用方便,老人房间带厕所,实用,大窗户采光很好,营造舒适的室内环境,修建车库,满足现代生活的需要。 分布着大厅、老人室、客厅、农具室、厕所、厨房、餐厅、车库。
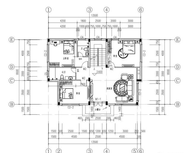
双层平面分布图

二楼主要卧铺有厕所,方便舒适,卧室多,满足农村生活的需要,客厅连接小露台,光线透明,小露台可以休闲看风景。 分布3卧室、厕所、客厅、小露台。
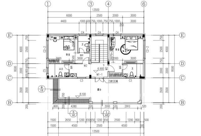
三层平面分布图

三楼的大露台可以设置成庭院的形状,可以给房子上色,可以设置在阳光室,也可以用休闲晒衣服农作物,用途多,很实用。 分布2卧室,厕所,大露台。

欧代三层别墅,外观时尚美观,户型设计精巧,非常适合大家在家乡建造。
基本信息:
开间:十米
深度: 12米
建筑面积: 326平方米
存货成本: 50万美元
一层平面分布图

一楼客厅选空,转楼上二楼,大气豪华,空间布局松散,功能完善,后面小门敞开,家庭出入方便。 分布客厅、卧室、厨房、餐厅、厕所。
双层平面分布图

两层功能设置齐全,布局合理,大型露台设置修订,光线透明,可以轻松晒干。 分布3卧室、厕所、衣帽间、露台。
三层平面分布图

三楼面积比较大,光线好,居住性能好,客厅也有小阳台,可以晒衣服,卧室设计多,充分满足农村生活的需要,考虑得非常周到。 分布客厅、2间卧室、厕所、食品室、露台。
转载请注明出自轩鼎别墅设计="://lemeizhai.com" target="_self">://www.lemeizhai.com