今年这座三层别墅非常火爆,占地面积不到120平方米,豪华大气还很实用!
随着社会的发展和时代的变化,农村的自营住宅已经不再是以前一样的模式了。 以前农村的自营住宅不用图纸,看谁家好,用葫芦画瓢建。 但是,现在追求个性化和居住的舒适性,来到农村的各种小楼真的让你头晕目眩,我们自己建房子的时候,应该怎样选择适合自己的图纸呢? 其实记住三点就不好了。 第一,面积适合自己的基地,第二,外观和户型设计适合自己的审美和生活习惯,不能盲目追求奢侈与他人的竞争,第三,要考虑自己的经济负担能力,选择成本可以接受的图纸。
正面外观图

那么,这次向您推荐2020年的最新农村三层别墅图。 简欧风格,很漂亮,看看是不是你的菜。 首先,介绍一下这个别墅的具体参数。 地面宽10.8米,深10.8米,占地面积117平方米,总建筑面积318平方米,是地面3层的框架结构,本体成本在26万~30万之间。 占地面积不大,但简欧风的外观使别墅显得豪华大气,外立面图由金黄色的外墙炼瓦和乳白色的真石漆组合而成,经典的三段式修订很有层次感。 中空所选的大起居室和2层大的落地窗表现大气,透明明亮,接近黑色的深灰色坡屋顶给整栋别墅增添了庄严感。
背面外观图

别墅的背面和侧面形状更简单,这无疑是对小户型来说最和风的方式,占地面积不到120平方米,但确实能看到大气。
鸟瞰wai'guan'tu

入户门楼直通二楼,增加了入户仪式感,为二楼提供了开放的阳台。 三楼有大面积的开放露台,在这里眺望麦田仰望天空,很舒服。
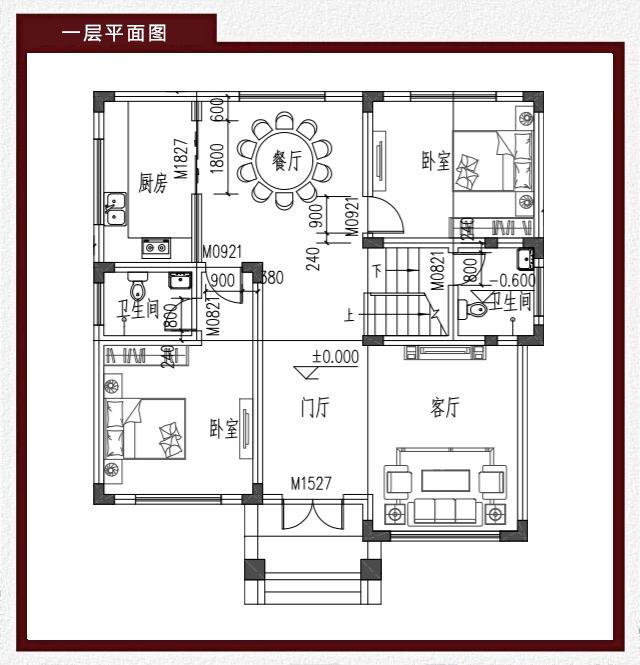
一层楼的布局图

一楼通过正南门进入后是大厅,大厅的右侧是客厅的北侧是餐厅,3个空间相互运用,使室内看起来宽敞明亮。 选一个中空的大客厅接待客人更豪华。 南侧有带独卫的主卧铺,可以作为老人的房间使用。 北侧还有一间卧铺,也适合作为客房和佣人之间。
二楼地板模型图

二楼主要作为家庭起居空间,共有三间卧室,其中东北方主要睡觉,先进书房正寝。 公卫在三间卧室的入口处,很方便。 中间有家人聚集的起居室,朝南可以通过阳台。
三楼地板模型图

三楼有两间卧室,可供客人居住,业主活用的房间使用。 建筑物的东北一侧有健身房,重视健康生活的今天,家里有健身房,放置跑步机和健身器械,可以在家里进行体育运动,健身房的南侧是开放的阳台。这张2020年最新的农村三层别墅图占地不足120平方米,不仅有7间卧室,还有书房、健身房的功能性空间,复式客厅更豪华有面子,顶层有大露台,户型修订非常合理实用,外观也非常漂亮。
转载请注明出自轩鼎别墅设计="://lemeizhai.com" target="_self">://www.lemeizhai.com