三种农村二层小别墅的设计图,不仅让面子更漂亮,也让你更光彩
并且,为了知道现在越来越流行回到农村老家自己建别墅,这主要是因为这些农村出身的朋友普遍有“留根”的情况。 回到家乡盖房子不仅是为了父母,今后自己老了也可以作为自己的养老房。 生命既然从这里开始,就从这里结束。 你说呢今天推荐这非常大气实用的二层农村别墅户型。 建造它不仅有面子,还能让你更光辉。
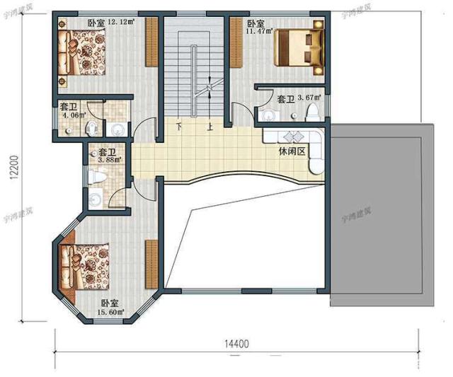
方案1 :高贵三开间二楼小别墅YH-A-2027
房屋概况:本户型是三个典型的英式二楼小别墅的修订图,农村建筑师的要求越来越高,千篇一律的欧式已经不能满足他们的要求。 英式还有一种美。 这座别墅采用英式风格,外观线条优雅,处处精致高贵。 带有屋顶背层和3个圆锥窗,土黄色的真石漆和深褐色的斜面屋顶组合,看起来很舒服。 空间整体布局舒适,大气实用。




方案2 :简单大气农村二层建筑推荐YH-A-2021
房屋概况:本户型是农村二层建筑简单大气设置修订方案,建设小别墅推荐户型设置修订图,复式客厅设置修订,占地面积不足150平方米,外墙用白色真石漆装饰,组合蓝坡屋顶,整体色彩古朴自然,层次感,室内布局光滑框架结构,本体成本在42万左右的多数人喜欢欧式乡村田园风格的别墅,配合欧式外观、乡村田园、草坪、树木美丽的风景,如画一般,虽然看不见,但今天大家推荐的这座田园风格的别墅,一定会成为人们眼中美丽的风景。



场景3 :带庭院的中式别墅外观效果图YH-A-2005
房屋概况:本户型为带庭园的中式别墅效果图和设订图一套,包括外观照片,独立车库,空间大卧室多。 开间比较大,外墙用灰色瓷砖装饰,院子里种了几棵树,养了花草,增加了生活的乐趣。 农村盖房子的宅基地有限制,但一般来说有建造庭院的空间,庭院不仅有实用性,空间感也增加了。 现在农村也有很多车,可以把车停在院子和车库里。



转载请注明出自轩鼎别墅设计="://lemeizhai.com" target="_self">://www.lemeizhai.com