农村150超大空间独院自建房设订图

今天150,不过,由于优秀的空间设计和修订画,一点也不觉得狭小,反而介绍非常广的独立小院设计。 大家一直住在城市的大楼里,一定习惯了城市生活。 这个时候回农村盖自己的房子很舒服。 远离城市污染,有空养鱼,有各种各样的花,也十分有益于身心健康。
这个独院设计从外观上可以看出其先进的设计感。 我不知道你以为是哪部科幻电影的小屋。 朝阳的一面设置了多面窗,确保了整体空间的通气性,其次开的圆孔也同时保证了光和通气。 看起来很简单,但不失设计感的外观,总是很精致。

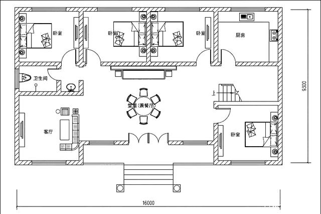
进门后的空间比从外表看的空间大得多,可以说还有别的洞穴。 进门进入眼睛是堂堂的,也兼作餐厅的作用。 非常适合家人聚在一起招待客人。 其中可以增加间隔,避免进入门是休息所。 左边是客厅,对应外观的窗户,夕阳西下,阳光照射很有意义。 这户型设有四间卧室,但只有一间厕所,主房在建设时还可增加一处以缓解不便。 厨房位置正好设有楼梯,与上面的天花板储藏室相通。 如果家里人少,可以把其中一间卧室改为娱乐室或其他东西,主要是根据需要改变。
介绍这个150的独立小院设计。 大家都认为这样的小屋好
转载请注明出自轩鼎别墅设计="://lemeizhai.com" target="_self">://www.lemeizhai.com