您好,欢迎访问轩鼎房屋图纸网,轩鼎建筑为您提供新农村房屋设计图、别墅设计图纸以及别墅定制设计与咨询服务。
 
 
  热门搜索:自建房 别墅设计 房屋设计图   
网站首页 图纸大全 定制设计 作品展示 建房图文 联系我们
一层房屋图纸
二层房屋图纸
三层房屋图纸
四层以上图纸
双拼房屋图纸
其他建筑图纸
 
 
 您的位置:首页 ->> 建房图文 ->> “农村自建别墅设计图一楼”——盖好房子!
 
 

“农村自建别墅设计图一楼”——盖好房子!

发布时间:2020/9/11 20:26:34 点击数: 2817次 

  “农村自建别墅设计图一楼”——盖房子好

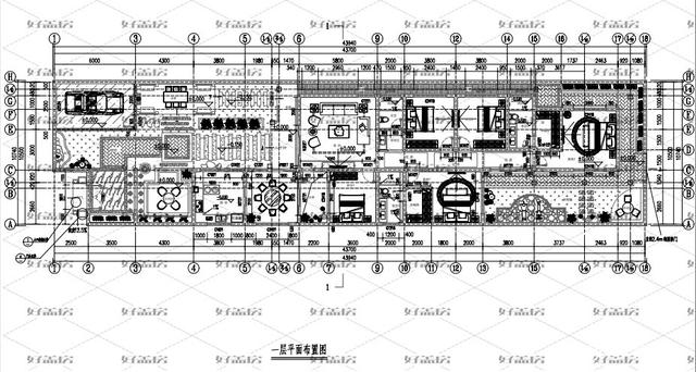
农村自建别墅设计图

  对于很多想要建房子的人来说,房子的形状很漂亮,满足自己的居住要求,房子整体的成本很便宜,这两个要求可能难以同时满足,也可能难以满足,但并不是不能满足。

农村自建别墅设计图

农村自建别墅设计图

农村自建别墅设计图

农村自建别墅设计图

农村自建别墅设计图

农村自建别墅设计图

转载请注明出自轩鼎别墅设计="://lemeizhai.com" target="_self">://www.lemeizhai.com

 
· 农村自建房瓷砖如何挑选(自建房...
· 回老家盖一座别墅,和家人住在一...
· 农村自建房卫生间布局设计(农村...
· 欧式风格的别墅是现在人们最喜欢...
· 有车一族的福音两款有车库的二层...
· 板楼和塔楼应该怎么选 (塔楼与板...
· 孩子喜绝对喜欢的农村二层自建别...
· 十套别墅院子设计分享(2022农村...
  关于我们 网站事务 帮助中心
客服热线:400-079-6579
客服QQ:10928711 10928755 10928799
地址:山东省潍坊财富大厦1801
 

预定须知
顾客必读
配送方式

 


Copyright 2016 www.lemeizhai.com All Rights Reserved ICP备案序号:鲁ICP备2026012448号-1
轩鼎房屋图纸 电 话:0536-3385581 3385582 传 真:0536-3385581 地 址:山东省潍坊财富大厦1801


keywords:房屋设计图 房屋设计图 农村房屋设计图 农村房屋设计图 建房图文